EasyManua.ls Logo

Philips LC4.31E - IR-LED and Light Sensor Panel (26& 32

Philips LC4.31E
149 pages
Print Icon
To Next Page IconTo Next Page
To Next Page IconTo Next Page
To Previous Page IconTo Previous Page
To Previous Page IconTo Previous Page
Loading...
EN 124LC4.31E AA 7.
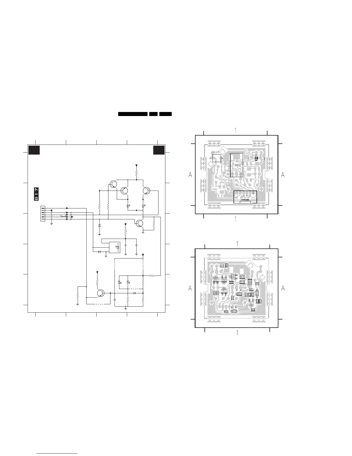
Circuit Diagrams and PWB Layouts
IR-LED and Light Sensor Panel (26"& 32")
IR/LED/LIGHT-SENSOR
TO 1K00 OF SSB BD
3V5
3V5
RES
RES
RES
RES
RES
RES
TSOP34836LLIB
0R
0R
(ITV ONLY)
(ITV ONLY)
(ITV ONLY)
TSAL4400-MS21
6808
RES
1234
1234
A
B
C
D
E
A
B
C
D
E
1870 B1
2801 D4
2802 D4
2803 E3
3801 B3
3802 A4
3803 C4
3804 B3
3805 C4
3807 E2
3808 E3
3809 E4
3810 E4
3811 E4
3812 D4
4806 E4
4807 E3
4808 D3
4809 D4
6801-1 B4
6801-2 B4
6802 E4
6803 C3
6809 D3
7801 B4
7802 C3
7803 B4
7804 C4
7805 B3
7807 E3
7808 E4
F801 C1
F802 C1
F803 B1
F804 B1
F805 C1
F806 B1
I801 B3
I802 B4
I803 B3
I804 C4
I805 A4
I806 B4
I809 E3
I810 E4
I811 E4
PC-TV-LED
F805
I801
F802
LED_SEL
I802
I803
IR
F804
I804
+3V3STBY
330R
3802
+3V3STBY
F803
I809
F806
3808
LIGHT-SENDOR-SDM
6809
4806
4809
3812 220R
4808
3805
7805
BC847B
3804
6803
BZX384-C3V9
+3V3STBY
+3V3STBY
I811
I810
3807
3810
3809
2M2
7807
6802
7808
BPW34
2803
1u0
3811
4807
I806
I805
2802
10u
3K3
3801
7804
BC847B
7803
BC847B
+3V3STBY
7801
BC857B
6801-1
SPR-325MVW
RED
1
2
6801-2
SPR-325MVW
GREEN
32
GND
2
OUT
1
VS
3
7802
F801
2801
10u
6.3V
220R
3803
1
2
3
4
5
6
1870
J J
3139 123 6171.1
G_16210_067.eps
190106
Layout IR-LED and Light Sensor Panel (26"& 32") (Top Side)
Layout IR-LED and Light Sensor Panel (26"& 32") (Bottom Side)
3139 123 6171.1
G_16210_068.eps
190106
1870 A1 6801 A1 7802 A1 7808 A1
3139 123 6171.1
G_16210_069.eps
190106
2801 A1
2802 A1
2803 A1
3801 A1
3802 A1
3803 A1
3804 A1
3805 A1
3807 A1
3808 A1
3809 A1
3810 A1
3811 A1
3812 A1
4806 A1
4807 A1
4808 A1
4809 A1
4815 A1
6802 A1
6803 A1
6809 A1
7801 A1
7803 A1
7804 A1
7805 A1
7807 A1

Table of Contents

Related product manuals