EasyManua.ls Logo

Philips LC4.31E - Front IR; LED Panel (37 & 42

Philips LC4.31E
149 pages
Print Icon
To Next Page IconTo Next Page
To Next Page IconTo Next Page
To Previous Page IconTo Previous Page
To Previous Page IconTo Previous Page
Loading...
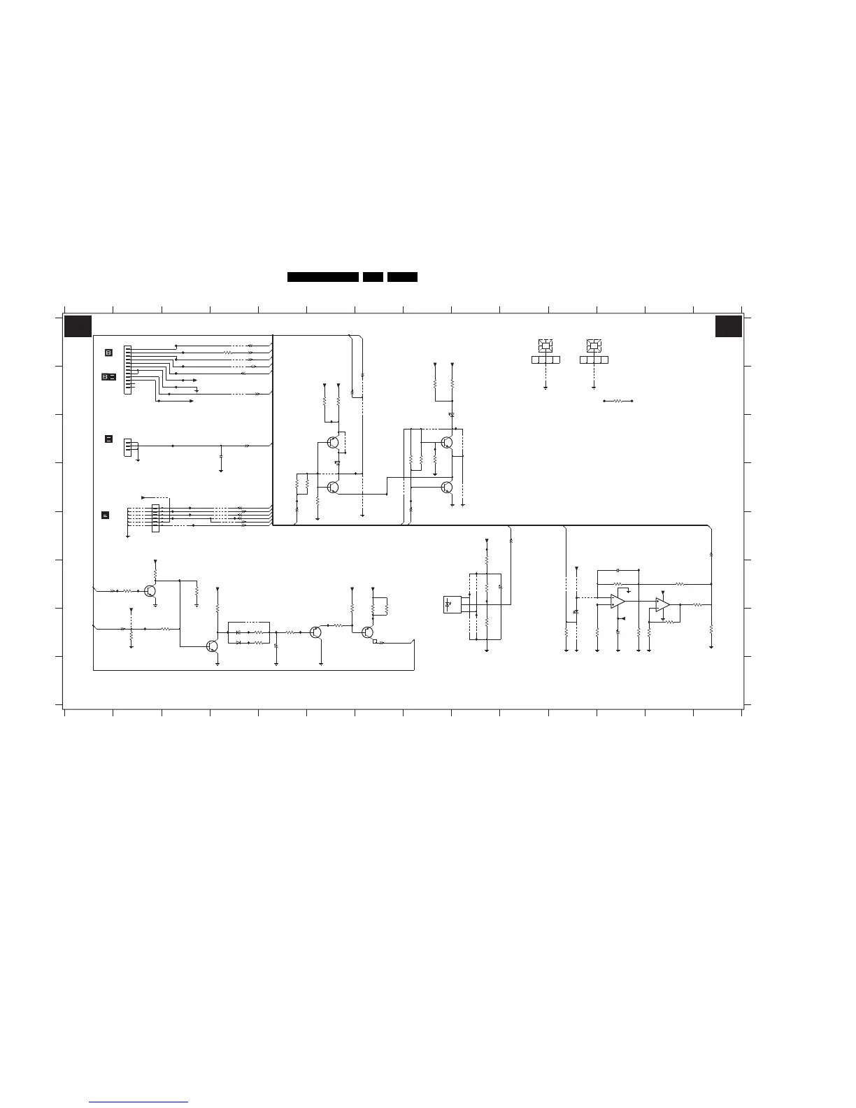
Circuit Diagrams and PWB Layouts
EN 125LC4.31E AA 7.
Front IR / LED Panel (37" & 42")
0001 A10
0002 A11
0345 D2
1040 F9
1M01 C2
1M20 A2
2014 C4
2030 G5
2040 F9
2070 F12
2071 G12
3011 A4
3030 G4
3031 G5
I063 D7
I064 D5
I065 C9
I071 F11
I072 F14
I073 G12
I074 G12
I075 F12
123 45678 9 10
I076 F13
I093 F2
I094 F3
I095 C6
"IR RECEIVER"
(RES)
123 45 6
3032 G5
3033 G5
3034 G6
3035 G6
11 12 13 14
A
B
C
D
E
F
G
H
A
B
C
D
11 12 13 14
"BLUE" or
"RED"
"LED DIMMING"
3036 G7
3037 G7
3040 F9
3041 G9
3042 F9
3051 B8
3052 B8
3053 C8
3054 C8
3055 C8
3056 D6
7 8 9 10
EXTERNALS
OR
3070 G11
3071 F12
3072 G13
3073 G13
3074 F13
3075 F14
3076 G14
3077 G12
3078 G11
3091 G2
3092 F2
E
F
G
H
CONTROL
TO 034 5
LED PANEL (37")
6030 G4
6031 G4
6051 C8
6060 C6
6070 G11
7030 G6
7031 G7
7032 G4
7051 C8
7052 D8
7061 D6
7062 C6
7070-1 F12
7070-2 G13
7092 F2
9011 C6
3061 B6
3062 B6
3063 D5
3064 D5
TOP CONTROL
JL2.x / LC4. x
TO 1M2 0
FTx2.x / Bx2.x
BOARD
9031 G4
9040 G9
9041 F9
9042 G9
9043 F9
9052 C9
9053 C8
9054 D9
9056 D7
9062 D7
9063 D6
3093 F3
3094 F2
3096 G3
3999 B12
"GREEN"
9071 F11
9072 G11
9081 E4
9082 E3
9083 D3
9093 G2
9110 D2
9111 D4
9112 D2
9113 D4
9114 E2
9115 E4
9116 E2
9117 E4
9118 E2
9012 B4
9015 A4
9016 A4
9017 A4
(RES)
(RES)
TO 1M01
F010 A3
F011 A3
F012 A3
F013 B3
F014 B3
F015 A3
F016 B3
F017 B3
F018 B2
F021 C3
F038 B12
F039 B12
F083 D3
F084 D3
F086 E3
9064 B7
9065 B7
9066 D7
9070 F11
TO 1M20
SSB
I033 G4
I037 G7
I038 G6
I039 G4
I040 G5
I041 G9
I042 G9
I043 F9
I044 F9
I045 F9
I046 E9
I047 G4
I048 G5
I049 G7
I051 D8
I052 C8
9119 E2
9120 B10
9121 B11
9122 F11
"LIGHT SENSOR"
I053 B9
I054 D7
I061 D6
I062 C6
(RES)
F089 E3
I010 F2
I011 G2
I012 E3
I013 E4
I026 F12
9115
9113
9119
F084
9118
6030
BAS316
2
1
8 4
I054
LM358P
7070-1
3
10K
3092
9120
9121
EMC HOLE
0002 0001
EMC HOLE
I042
I039
3999
10K
I093
I094
I065
3031
100K
7030
F010
BC857BW
1 2
TEMD5000
6070
I062
6051
OPT_LED
SML512BC4T
+5V2-STBY
F016
3076
3K3
I037
+5V2-STBY
F089
+5V2-STBY
3033
1K0
10K
4
5
6
7
8
9
13
14
3074
1
10
11
12
2
3
1M20
3035
I044
4K7
F086
F015
3055
I053
10K
9066
BCP53
7031
I076
9112
330R
3042
3051
I048
6K8
I038
+8V
3011
100R
9052
9012
F017
100R
3064
3037
2R2
9117
9031
F038
9040
I046
10K
3063
I033
9065
9064
BC847BW
7061
I045
9111
7062
BC857B
9056
10K
3056
1
2
3
45
1M01
I063
BC847BW
7032
F083
9082
7092
560R
BC847BW
3062
330R
3061
I043
9110
+5V2-STBY
3K3
3073
SML512BC4T
6060
3040
330R
3071
4M7
1040
GN D
OUT
VS
TSOP34836YA1
4M7
3070
7 8
I041
1
2
3
4
5
6
0345
I061
2014
100n
9063
I075
9093
+8V
9016
+8V
3075
4K7
3091
10K
10u 16V
2030
9072
10K
3096
9017
+5V2-STBY
F018
I026
4K7
3094
10K
3030
BC847BW
7052
3036
I049
2R2
10K
3041
I074
9062
2040
100u 16V
F011
F012
I040
9053
9015
BAS316
6031
F013
+5V2-STBY
3072
1K0
I051
9041
I064
I095
+8V
9011
F021
+5V2-STBY
9122
7051
BC847BW
9070
9071
1K0
+5V2-STBY
3034
F014
3053
10K
9043
I010
I011
I047
I013
I012
9116
9114
+5V2-STBY
2M2
3078
9081
I052
3054
100R
I071
LM358P
7070-2
5
6
7
8 4
3K3
+5V2-STBY
3077
F039
I072
180K
3032
3093
10K
9042
560R
3052
9083
9054
2071
10u 16V
470n
2070
+8V
I073
LED1
LIGHT-SENSOR
+8V
LED2
LED1
LIGHT-SENSOR
KEYBOARD
RC
BLACKLIGHT-TC
KEYBOARD
LIGHT-SENSOR
STATUS-POWE R
LED2
LED1
LED1
STATUS-POWER
RC
LIGHT-SENSOR
BLACKLIGHT-TC
RC
COM-SND
LED1
KEYBOARD
LED2
COM-SND
G_16210_043.eps
180106
3104 313 6074.3
J J

Table of Contents

Related product manuals