EasyManua.ls Logo

Philips LC4.31E - SSB.3: Tuner and if (B01

Philips LC4.31E
149 pages
Print Icon
To Next Page IconTo Next Page
To Next Page IconTo Next Page
To Previous Page IconTo Previous Page
To Previous Page IconTo Previous Page
Loading...
EN 82LC4.31E AA 7.
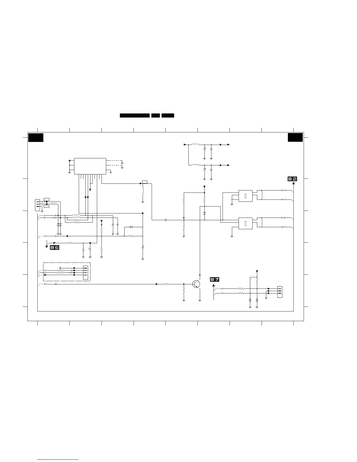
Circuit Diagrams and PWB Layouts
SSB .3: Tuner and IF
I
O2ISWI
O1
GND
I
O2IGND
O1
GND
RES
RES
For ITV Only
NC
COMPAIR
2V6
0V
TO/FROM iBOARD
5V3
RES
1151 B1
1152 A2
1153 D2
1154 B7
1156 C7
1177 E8
2151 A6
2152 A6
2153 A6
2154 C3
2155 C3
2156 C4
2157 D2
2158 D2
2159 D4
2160 A6
3151 B1
3152 B1
3153 C3
3154 C3
3155 C1
3156 D3
10K
3153
12
1153
3 45678
123 45678
A
B
C
D
E
A
B
C
D
E
5V3
0V
RES
*
7V1
TUNER & IF
RES
RES
3157 B5
3158 B6
3159 C5
3161 E5
3162 E5
3163 C2
3164 C2
3166 D1
3167 D1
3170 E7
3171 E7
3172 E7
3173 E7
4151 A3
4152 A3
5151 B4
5152 A5
5153 A5
5155 B8
5156 C8
5157 C2
5158 C2
6151 C1
6152 C1
+VTUN
6153 C3
6154 C6
6176 E7
6177 E7
7151 E5
F151 A1
F152 B1
F154 B1
F155 C4
F156 C1
F157 C2
F158 B4
F159 E4
F160 D2
F161 D2
F162 D2
SERVICE
SERVICE
F163 D2
F164 B2
F165 B2
F166 A6
F167 A6
F175 E8
F176 E8
F177 E8
I151 C3
I152 B6
I153 C5
I154 E5
I155 E6
I156 C1
I157 C1
FROM SCALER
NC
1V7
0V
RES
UART
*
0V
2V6
100R
3167
2160
100u
16V
BZX384-C6V8
6151
F155
+3V3STBY
2157
47n
10K
3154
1K0
3155
100R
5VSW_b
3164
4152
5155
2152
10n
1
2
3
4
56
10K
3171
5VSW_a
TU
F151
14
15
16
17
6
NC1
10
NC2
SCL
4
SDA
5
2
9
33V
7
5V
ADC
8
1
AGC
3
AS
11
IFOUT
12
13
1152
UV1318ST/AIH-MK3
TUNER
5VSW_b
5156
5
100R
3163
1151
1
2
3
4
F159
I155
6K8
3157
I152
2K2
3158
50V
2u2
2158
2159
22u
16V
18K
3162
5157
2
5
4
I153
38M9
OFWK3953M
1154
3
1
5VSW_a
5VSW_a
3173 100R
4151
F167
F157
F166
6152
BZX384-C6V8
16V
100u
2151
15
4
1156
OFWK9656M
38M9
3
2153
2156
10n
10n
F160
F161
6u8
5152
F156
I157
F152
F154
F175
22p
2155
6153
BAS316
6u8
5153
100R3172
3161
22K
2K2
3159
3156
1SS356
BC847BW
6154
7151
F158
F176
F177
I154
F164 F165
390n
F163
+3V3STBY
5151
2154
22p
3170
10K
2
3
45
1177
1
I151
I156
F162
3166
100R
3152
100R
100R
3151
6176
BZX384-C6V8
+5VSW
BZX384-C6V8
6177
5158
SCL
SDA
UART_TX
UART_RX
VIF1
VIF2
SIF1
SIF2
SEL_IF_SDM
IF-TER
RF_AGC
SCL
SDA
B01 B01
I_16213_001.eps
121108
3139 123 6117.3

Table of Contents

Related product manuals