EasyManua.ls Logo

Philips LC4.31E - Page 51

Philips LC4.31E
149 pages
Print Icon
To Next Page IconTo Next Page
To Next Page IconTo Next Page
To Previous Page IconTo Previous Page
To Previous Page IconTo Previous Page
Loading...
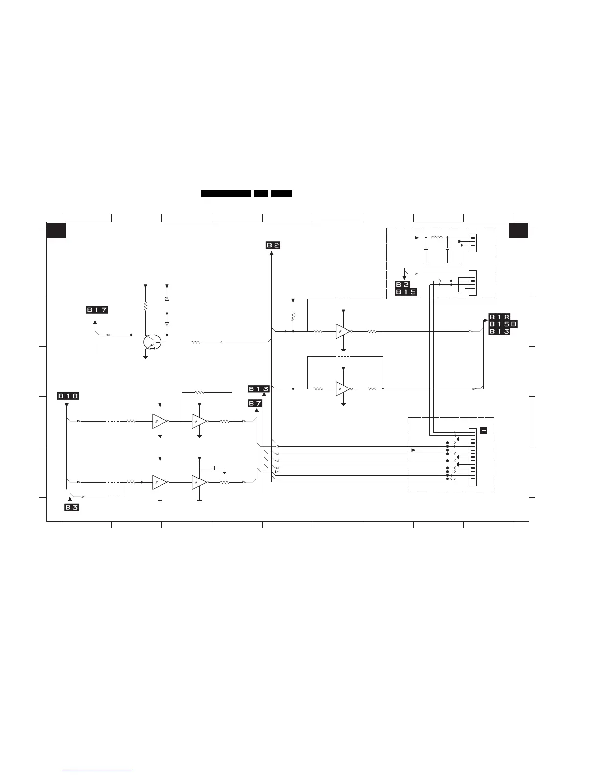
Circuit Diagrams and PWB Layouts
EN 51LC4.31E AA 7.
SSB .2: Sync Interface
G_16210_003.eps
160106
3139 123 6117.2
B3 B3
SYNC INTERFACE
FOR ITV ONLY
&
TO SIDE CONNECTORS
RES
RES
RES
RES
RES
0V
3V1
TO/FROM 1000 OF
FOR OTC ONLY (1000pg TEXT)
123456789
123456789
A
B
C
D
E
A
B
C
D
E
1440 A9
1441 A9
1442 D9
2447 A8
2448 A8
2449 E4
3431 B2
3432 B3
3451 B5
3453 B6
3454 B7
3455 C6
3456 C7
3458 D2
3459 D4
3461 E2
3462 E4
3463 C3
4436 B6
4437 C6
4439 E1
4440 D2
4441 E2
5431 A8
6430 B3
6431 B3
7430 B2
7436-1 B6
7436-2 C6
7436-3 D2
7436-4 D3
7436-5 E3
7436-6 E3
F404 D8
F405 D8
F406 E8
F407 E8
F408 E8
F409 E8
F410 E8
F411 E8
F412 E8
I430 B3
I440 C5
I443 B5
I449 A8
I450 A8
I451 A8
I452 A8
I453 B3
I454 B2
I455 E2
+5V
I455
F406
F404
F405
F408
F407
F409
F411
F410
F412
+3V3SW
2
3
4
5
6
7
8
9
15
16
BM14B-SRSS-TB
1442
1
10
11
12
13
14
I454
I453
3463
+3V3SW
2449
100n
+3V3SW
100R
3462
4439
3461
100R
4441
3459
+3V3SW
100R100R
+3V3SW
3458
4440
3456
100R100R
3455
100R
3454
12
3453
100R
7436-6
74LVC14APW
13
7
14
11
7
14
10
9
7
14
8
7436-5
74LVC14APW
14
6
7436-4
74LVC14APW
7436-3
74LVC14APW
5
7
7436-2
74LVC14APW
3
7
14
4
1
7
14
2
+3V3SW
7436-1
74LVC14APW
+3V3SW
4437
4436
I451
I452
I450
I449
I443
6431
1N4148
2448
10p
10p
2447
3
45
+12VSW
5431
1441
1
2
B3B-PH-SM4-TBT(LF)
3451
+3V3STBY
3432
4K7
3
4
5
67
1440
BM05B-SRSS-TBT
1
2
6430
I430
+5VSW
BZX384-C2V7
+3V3STBY
7430
PDTC114ET
3431
1K0
I440
CVBS_COMB
INT_OTC
R_OTC_SDTV
G_OTC_SDTV
COL_VA
Vsync_SDTV
V_1FH
SDA
B_OTC_SDTV
RESET_FLASH
SCL
COL_HREF
H_1FH
SC1_CVBS_RF_OUT
Vsync_SDTV
P50_LINE_ITV_IR_SW_RST
VSYNC
HOUT Hsync_SDTV
LED_SEL

Table of Contents

Related product manuals