EasyManua.ls Logo

Philips LC4.31E - Page 85

Philips LC4.31E
149 pages
Print Icon
To Next Page IconTo Next Page
To Next Page IconTo Next Page
To Previous Page IconTo Previous Page
To Previous Page IconTo Previous Page
Loading...
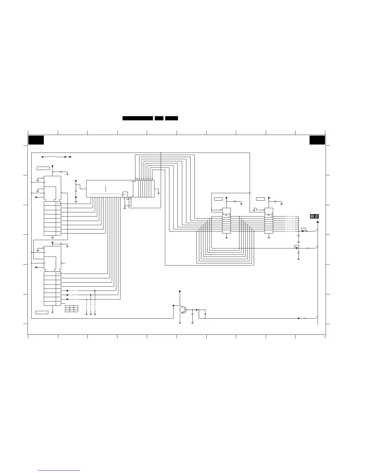
Circuit Diagrams and PWB Layouts
EN 85LC4.31E AA 7.
SSB .3: Audio Delay Line (PDP Only)
EN
C1
1D
EN
C1
1D
C2
G1
1+
CT=0
CTR8
(CT=255)Z4
2D 3
4
EN3
2C1
14
13
11
10
9
8
7
6
5
4
3
2
1
0
2EN
32k-1
0
A
A,1D
12
A
G2
C2
G1
1+
CT=0
CTR8
(CT=255)Z4
2D 3
4
EN3
5V3
2V3
10
123 45678 910
A
B
C
D
E
F
A
B
C
D
E
F
2501 A2
2502 B2
2503 D2
2504 B7
2505 B9
2506 C10
4503
123 45678 9
2507 D10
2508 F6
2509 F7
3501 F6
3502 F6
4501 E2
4502 F2
4503 F2
4504 F2
4505 F3
4506 F3
4507 C9
4508 C9
4509 C9
4510 C9
4511 C9
4512 C9
4513 C9
4514 C9
RES
2V6
2V6
*
RES
RES
2V6
5V3
2V5
2V5
2V5
5501 A1
7501 A1
7502 B3
2V6
RES
7503 F1
7504 F6
7505 B7
7506 B8
F501 A2
F502 B2
F503 C10
F504 D10
F505 F10
I501 F5
I502 F6
I503 E2
I504 E2
I505 F2
I506 E3
I507 E3
2V6
*
PDP
COUNTER
2V5
N
5V3
LCD
2V6
RES
COUNTER
*
2V3
5V3
5V3
2V6
RES
2V3
2V5
2V3
RES
2V3
AUDIO DELAY LINE (LIPSYNC)
5V3
LATCH
5V3
2V6
2V6
2V3
2V3
Y
2V5
2V5
Y
+5VD
470p
2507
4504
RES
5V3
2V6
LATCH
2V6
2V6
2V6
2V6
N
0V2
4503
2V6
RES
2V6
2V5
I504
F505
4513
I505
4509
+5VD
3501
470R
4502
I501
4508
4512
4505
F501
I507
330p
2506
2502
100n
I506
4514
5
6
7
13
9
VCC
16
GND
8
14
15
1
2
3
4
11
12
10
18
17
16
15
14
13
12
20
7503
M74HC590T
4
5
6
7
8
9
10
11
1
19
74HC573PW
7506
2
318
17
16
15
14
13
12
20
5
6
7
8
9
10
11
1
19
74HC573PW
7505
2
3
4
100n2501
1u0
+5VD
F503
5501
3502
47K
4511
4504
+5VD
+5VSWI
+5VD
+5VD
4
5
6
7
13
9
16
VCC
12
10
GND
8
14
15
1
2
3
7501
M74HC590T
11
+5VD
2503 100n
F504
2504
100n
4507
F502
22
28
27
2509
82p
5
20
11
12
13
15
16
17
18
19
14
8
9
10
24
25
26
1
2
3
4
21
23
6
7
+5VD
CY62256LL-70ZC
7502
32kx8
RAM
BC847BW
7504
4510
I502
4506
4501
82p
2508
I503
+5VD
100n
2505
I2SDO1
I2SDI1
I2SCLK
B04
B04
I_16213_004.eps
121108
3139 123 6117.3

Table of Contents

Related product manuals