EasyManua.ls Logo

Philips LC4.31E - Page 87

Philips LC4.31E
149 pages
Print Icon
To Next Page IconTo Next Page
To Next Page IconTo Next Page
To Previous Page IconTo Previous Page
To Previous Page IconTo Previous Page
Loading...
Circuit Diagrams and PWB Layouts
EN 87LC4.31E AA 7.
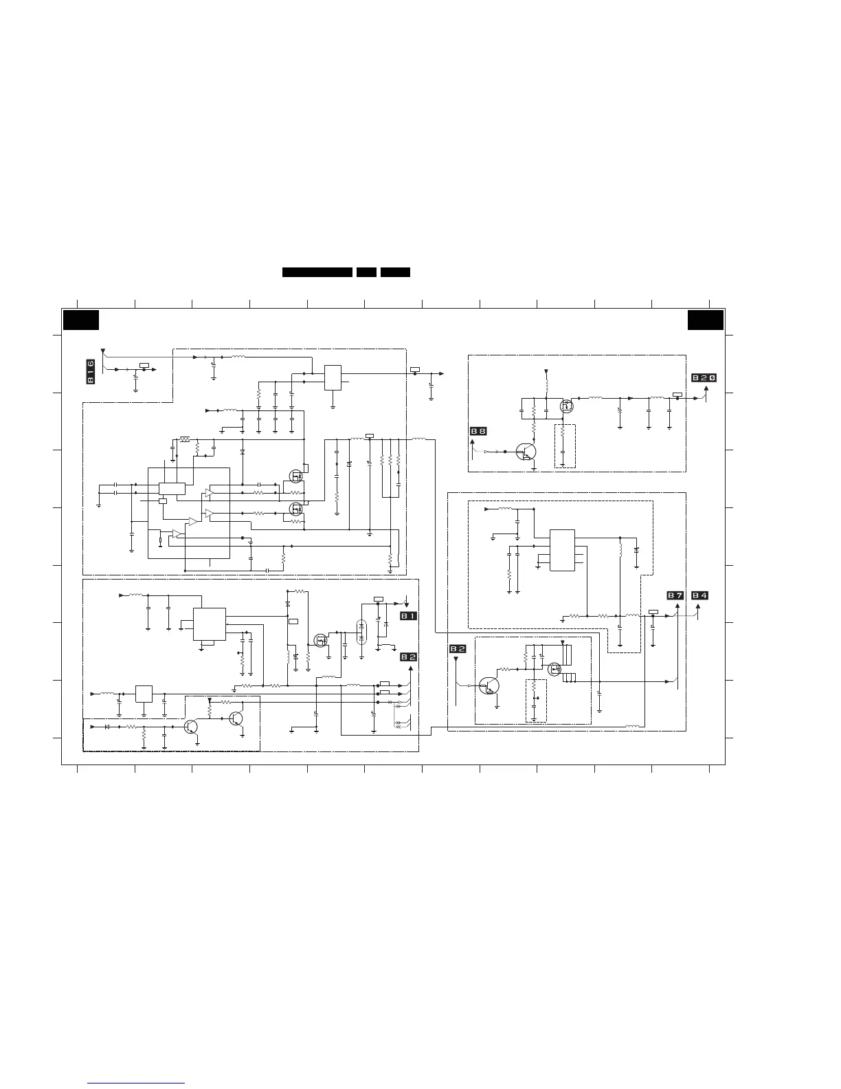
SSB .3: DC-DC Converter
FB
OUT
COMP
VREFVCC
INH
SYNC
GND GND_HS
OUTIN
CTRL NC
COM
OSC
Monitor
Protection & Ref
VREF
SS
OSC
EAREF
COMP
NC
VFB
GND
PGND
LGATE
PHASE
HGATE
BOOT
OCSET
VCC
PGOOD
COM
OUTIN
3V1
RESERVED
RESERVED
10 11
A
B
C
D
E
F
G
A
B
C
D
E
F
G
2700 B11
2701 B11
2702 D1
2704 A2
2706 A3
2708 B4
FROM HERCULES
0V
11V5
B16
RES
3V2
0V6
SI2301BDS-T1-E3
DC-DC CONVERTER
8V
123 45678 91011
123 45678 9
RES
32V9
5V2
B7
B5
TO HERCULES CELL
2709 A4
2710 B3
2711 B4
2716 A7
2717 C1
2718 C1
2719 B2
2720 B3
2721 C4
2722 D4
2723 E4
2724 C5
2725 C5
2726 C5
2727 C6
2730 E2
2731 G5
2733 F4
2734 F3
2735 F5
TO TUNER CELL
SUPPLY TO TUNER & HERCULES
2736 E6
2737 G6
2738 G1
2739 G2
2741 G2
2749 B8
2750 F9
2751 B9
2752 B10
2753 D8
2756 D8
2757 F10
2758 F11
2759 G10
2760 B9
2761 G9
2762 F9
2763 D8
2764 B4
2765 B4
2766 E2
3701 C4
3702 D4
3709 B4
3718 B2
3719 B3
3720 C3
NC
3721 D3
3722 D4
3723 C5
3724 C6
3725 C6
3726 C6
3727 D6
3732 G3
3733 G4
3734 E4
3735 F5
3736 F3
3737 E8
3740 G1
3741 G2
3742 G3
3743 G3
3750 F8
3753 E9
3754 E10
3755 B9
3758 B8
3759 F8
3760 B9
3761 G9
5700 B11
5704 A3
5709 B3
5713 B6
5V4
FOR 26"-42" SCREEN
5717 B5
5730 E2
5733 F4
5735 F5
5737 G5
5738 G1
5751 G10
5752 C8
5753 D10
5754 E10
5756 A9
5757 A10
6717 C3
6718 C5
6733 F4
6734 E4
6735 E5
6736 F6
6740 G1
6751 D10
7708 A5
7710 C2
7711-1 C4
7711-2 D4
7730 E2
7735 F5
7738 G2
7741 G3
7742 G3
7752 D9
7754 B9
7755 B8
7756 G8
7758 F9
F700 B11
F701 A2
F710 A6
F717 D3
F736 E6
F737 G6
F738 G6
F743 G6
F754 E11
F755 C8
I701 F3
I702 G1
I704 G9
I705 F3
I706 A3
I708
A4
I709 A4
I710 B3
I711 C2
I712 C2
FROM SCALER
1V2
3V2
I714 C2
I715 C3
I716 C3
I717 C4
I718 C3
I719 C4
I720 D3
I721 D4
I722 E2
I723 D4
I724 C5
I725 B6
I726 C6
I731 E2
I732 G4
I733 E4
I734 F4
I735 F5
I736 G5
I740 G1
I741 G2
I742 G3
I747 B9
I748 F8
I753 E9
I754 E10
TO SCALER CELL
TO PACIFIC3
RES
FROM TOP CONNECTORS
(0V)
I755 D10
I756 B9
I757 B9
I758 D8
I760 B8
I762 E4
I764 C8
26" & 32" LCD
SUP_GND2
SUP_GND2
RESERVED
FOR 37"-50" LARGE SCREEN
SUPPLY TO SCALER
FOR 37"-50" LARGE SCREEN
3720
2R2
I719
SS = 4V9
TO LIPSYNC
11V5
6V8
RES
4K7
47u
SIG_GND2
2
8
6
16V
2739
L5973D
F
4
5
7
9
3
1
SUP_GND3
7730
10n
2727
PA N_ V C C
I714
3K3
3754
1%
16V22u
2710
1u0
2761
5733
33u
25V
3732
1K0 1%
SUP_GND1
I740
I742
I711
1K0
+5VSW
3753
1%
2725
1n0
2700
16V
2716
470u
I701
3709
6K8
F737
2708
I731
F738
120R
5700
2721 100n
BAV99
6735
+12VSW
2750
120R
+8VSW_TV
+12VSW
5738
I756
470u 16V
2726
1K2
3726
100R
1u0
25V
3760
2760
F736
3725
SUP_GND1
6718SS24
I717
1%3K3
6736
LV DS_VCC
3
1
2
BZX384-C33
7754
2
3
1
4
5
7708
LF33CPT
3761
100R
I760
16V47u
6751
SS14
2752
7
INH
3
OUT
1
SYNC
2
VCC
8
VREF
6
7752
COMP
4
FB
5
GND
+3V3STBY
L5970D
680p
16V
2737
470u
2735
I710
I708
10K
3755
I754
F754
3759
I748
12K
+12VSW
2718
100n
2759
5757
120R
16V100u
I706
10u
5709
3758
15K
I762
I715
I721
I716
I720
I724
3727
I718
1K0
1%
10u
5717
10R
3723
2720
1n0
2719
100n
6717
BAS316
2733
220p
3701
10K
10u
+3V3SW
2706
16V
I705
SUP_GND1
I735
3718
10R
F710
10u
5730
I741
F743
+12VSW
I732
10u 16V
2704
5704
2741
BC847BW
7741
220n
3741
1K5
1K5
3740
10u
5754
4u7
2751
16V
+3V3STBY
2762
22u
3736
2K7
3722
SUP_GND3
SIG_GND2
3750
22K
SIG_GND2
SIG_GND2
2717 100n
100R
3734
6734
GND
I747
BZX384-C6V8
10u
5737
SUP_GND3
+12VSW
I722
I712
2709
47u
2731
16V
5735
470u 16V
8
4
1
2
3
100u
SI4423DY
7758
5
6
7
470u
I764
2758
16V
2730
22u 16V
2753
16V22u
+12VSW
I733
22u
35V
2736
2702
100n
SIG_GND2
10u
2765
22K
3743
5756
+12VSW
7755
PDTC114ET
2749
SUP_GND1
5713
3u3
SUP_GND2
SUP_GND1
SUP_GND1
PDZ8.2-B
6740
I736
2757
16V470u
I755
47n
F755
2723
2722
1n0
680R
3719
1
I726
I709
14
16
3
2
13
9
10
4
15
6
7710
12
5
8
7
11
F717
L6910
2738
47u 16V
16V
SUP_GND2SUP_GND2
2711
22u
SUP_GND1
2N7002
7735
+5V
SUP_GND1
15K
SS14
3724
SUP_GND3
SUP_GND3
6733
SUP_GND3
1n0
2724
7
8
2
1
5751
10u
4K7
SI4922DY
7711-1
3737
22n
2763
2756
220p
3702
10K
+12VSW
+VTUN
3742
15K
BC847BW
220u
7742
5753
SUP_GND1
5752
10u
I757
I704
I753
2764
10u
2766
10u
I702
SUP_GND2
SUP_GND1
SUP_GND1
SUP_GND1
F700
I758
7756
PDTC114ET
100p
2701
2
1
3
7738
L78M08CDT
I725
F701
5
6
4
3
I723
7711-2
SI4922DY
3K3
+5VSWI
+3V3STBY
3733
1%
3735
1K0
3721 2R2
2734
22n
SUP_GND3
SUP_GND1
SUP_GND1
I734
POWER_DOWN
PANEL-PWR-CTL
SC_STA ND B Y
B06
B06
I_16213_006.eps
121108
3139 123 6117.3

Table of Contents

Related product manuals