EasyManua.ls Logo

Philips LC4.31E - Page 93

Philips LC4.31E
149 pages
Print Icon
To Next Page IconTo Next Page
To Next Page IconTo Next Page
To Previous Page IconTo Previous Page
To Previous Page IconTo Previous Page
Loading...
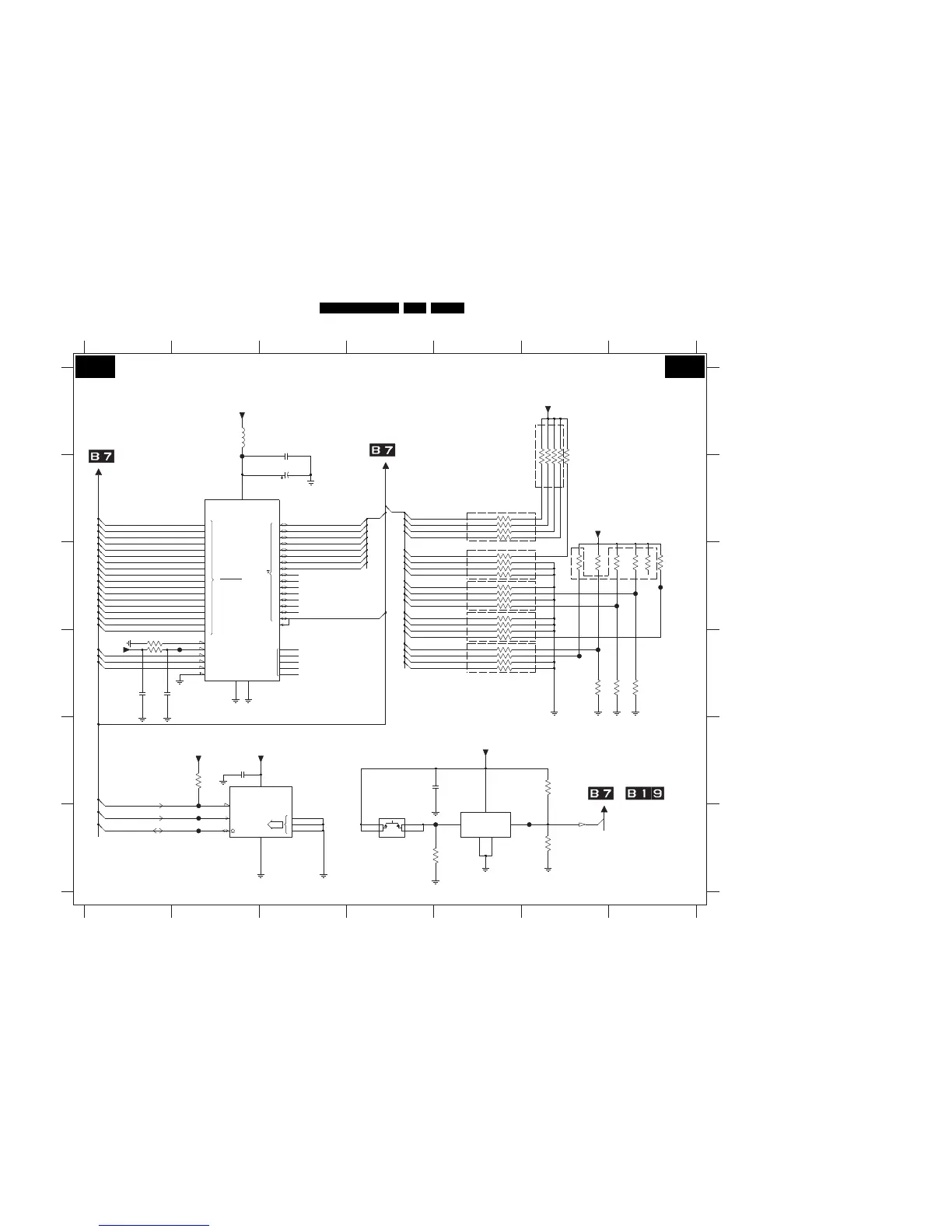
Circuit Diagrams and PWB Layouts
EN 93LC4.31E AA 7.
SSB .3: Flash / Control
SCL
ADR
0
1
2SDA
WC
A
D
5
11
2
1
17
OE
12
13
14
15
16
RB
4
3
2
CE
7
6
WE
RP
1
0
BYTE
3
NC
5
8
9
10
11
12
13
14
15
A-1
10
4
9
8
7
6
0
4M-1
0
3V2
123 4567
123 4567
A
B
C
D
E
F
A
B
C
D
E
F
1C00 F4
2C00 A3
2C01 B3
3V2
3V2
RES
&
3V2
TO SCALER
2C02 E2
2C03 E5
2C04 D1
2C05 D2
3C00 E2
3C01 F5
3C02 E6
3C03 F6
3C04-1 B6
3C04-2 B6
3C04-3 B6
3C04-4 B6
3C05 B6
3C06-1 B5
3C06-2 B5
3C06-3 B5
3C06-4 B5
3C07-1 C5
3C07-2 C5
TO COLUMBUS
3C07-3 C5
3C07-4 C5
3C08-1 C5
3C08-2 C5
3C08-3 C5
3C08-4 C5
3C09-1 C5
3C09-2 C5
3C09-3 D5
3C09-4 D5
3C10-1 D5
3C10-2 D5
3C10-3 D5
3C10-4 D5
3C16-1 C7
3C16-2 C7
3C16-3 C6
3C16-4 C6
3C17 C6
TO SCALER
3C18 C7
3C19 D6
3C20 D7
3C21 D7
3C22 D1
3C23 D1
5C00 A2
7C01 E3
7C02 F5
7C03 B2
FC00 A2
FC01 F2
FC02 F2
FC03 F2
FC04 F5
FC05 F6
FC06 D6
FC07 D6
FC08 C7
FC09 C7
FC10 C7
FC11 D2
3 6
TO SCALER
FLASH / CONTROL
For Software
3V2
0V
Development
0R
only - (RES)
RESRES
0V
RES
2C00
100n
10K3C10-3
8
3C16-1
1
3C03
100n
2C03
FC02
VCC
VOUT
4
100n
2C02
7C02
PST596J
3
GND
MR
1
SUB
2
5
3C19
+3V3SW
3 6
FC01
+3V3_IO
10K3C06-3
10K3C10-1 1 8
FC09
+3V3_IO
27
3 6
3C04-2
10K
3C07-3 10K
FC04
3C02
1K0
3 6
+3V3SW
5
3C09-3 10K
3C04-4
10K
4
45
+3V3SW
10n
2C04
3C07-4 10K
FC05
2C05
10n
FC06
10K3C08-4 4 5
+3V3_IO
6
5
8
4
7
F
EEPROM
7C01
1
2
3
10K
3 6
M24C32-WMN6
(4Kx8)
FC11
3C16-3
FC08
10K3C06-1 1 8
10K
3C17
3C10-2 2 7
FC07
27
10K
3
2
4
10K3C08-2
SKQR
1C00
1
3C08-33 6 10K
3C22 1K0
10K
3C04-1 1 8
10K
3C04-33 6
10K
3C00
10K
3C18
10K3C06-4 4 5
83C07-1 10K1
3C20
16
28
15
12
37
27
46
11
38
40
42
44
30
32
9
10
13
1426
29
31
34
36
39
41
43
45
33
35
17
23
22
21
20
19
18
8
7
47
25
24
6
5
4
3
2
1
48
M29W400DT-55N6
7C03
512Kx8/256Kx16
EPROM
FC00
3C07-2 10K27
2 7 10K3C06-2
10K3C08-1 1 8
5C00
3C21
16V
2C01
10u
3C01
10K27
1 8
3C09-2
+3V3_IO
3C09-1 10K
10K3C10-4 4 5
10K3C05
220K3C23
3C09-4 10K45
FC10
45
3C16-2
27
3C16-4
FC03
#OCM_RE
#ROM_CS
#OCM_WE
OCMADDR(18)
OCMADDR(0)
OCMADDR(1)
OCMADDR(2)
OCMADDR(3)
OCMADDR(4)
OCMADDR(5)
OCMADDR(6)
OCMADDR(7)
OCMADDR(8)
OCMADDR(9)
OCMADDR(10)
OCMADDR(11)
OCMADDR(12)
OCMADDR(13)
OCMADDR(14)
OCMADDR(15)
OCMADDR(16)
OCMADDR(17)
OCMDATA(0:7)
OCMADDR(0:19)
#RESET
OCMDATA(0)
OCMDATA(1)
OCMDATA(2)
OCMDATA(3)
OCMDATA(4)
OCMDATA(5)
OCMDATA(6)
OCMDATA(7)
OCMADDR(4)
OCMADDR(5)
OCMADDR(6)
OCMADDR(7)
OCMADDR(0)
OCMADDR(1)
OCMADDR(2)
OCMADDR(3)
OCMADDR(10)
OCMADDR(11)
OCMADDR(12)
OCMADDR(15)
OCMADDR(17)
OCMADDR(18)
OCMADDR(16)
OCMADDR(14)
OCMADDR(13)
OCMADDR(8)
OCMADDR(9)
OCMADDR(19)
SCL_IO
SDA_IO
NVM_WP_SCALER
B11 B11
I_16213_011.eps
121108
3139 123 6117.3

Table of Contents

Related product manuals