EasyManua.ls Logo

Pioneer M-LA21 - Page 11

Pioneer M-LA21
24 pages
Print Icon
To Next Page IconTo Next Page
To Next Page IconTo Next Page
To Previous Page IconTo Previous Page
To Previous Page IconTo Previous Page
Loading...
M-LA21
11
A
B
C
D
5
678
5
6
7
8
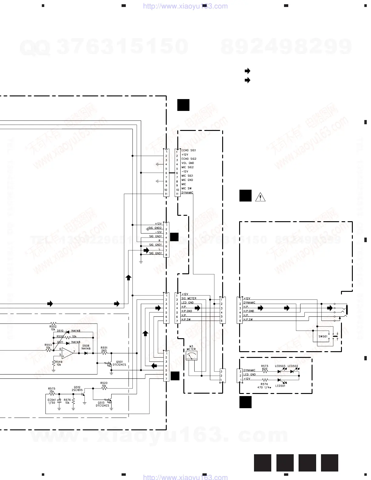
CN11
136-11PMT3-200J
CN2
135-PHS110-110J
CN22
135-PHS080-080J
CN3
135-PHS070-070J
CN4
135-PHS070-070J
CN13
050-060060-200J
CN16
135-030060-200J
CN17
CN12
136-17PMT3-200J
CN20
135-053259-040J
JK503
116-008020-000
110-033162-003A
110-033040-013A
PHONES
POWER METER ASSY
(PMT1LA100081)
E
HP JACK ASSY
(PMT1LA100111)
G
LED ASSY
(PMT1LA100051)
F
CN602
A
CN604
A
IC502
BA4558DX
2/2
: AUDIO SIGNAL ROUTE (L ch)
: AUDIO SIGNAL ROUTE (PHONES)
HP
HPHPHPHP
HP
HP
HP
HP JACK ASSY
SW501 : DYNAMIC
021-022322-000A
GFED
w
w
w
.
x
i
a
o
y
u
1
6
3
.
c
o
m
Q
Q
3
7
6
3
1
5
1
5
0
9
9
2
8
9
4
2
9
8
T
E
L
1
3
9
4
2
2
9
6
5
1
3
9
9
2
8
9
4
2
9
8
0
5
1
5
1
3
6
7
3
Q
Q
TEL 13942296513 QQ 376315150 892498299
TEL 13942296513 QQ 376315150 892498299
http://www.xiaoyu163.com
http://www.xiaoyu163.com