EasyManua.ls Logo

Pioneer PDP-503PE

Pioneer PDP-503PE
109 pages
To Next Page IconTo Next Page
To Next Page IconTo Next Page
To Previous Page IconTo Previous Page
To Previous Page IconTo Previous Page
Loading...
PDP-503PE, PDP-503PU
26
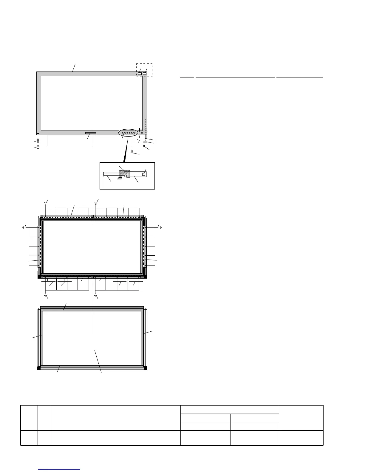
2.11 FRONT CASE SECTION
1 FRONT KEY Assy AWZ6656
2 Front Case 50 (P) AMB2722
3 Rivet AEC1877
4
5
6 Ferrite Core (L5) ATX1043
7 Lead Cover (P) AMB2704
8 Pioneer Badge AAM1091
9
NSP 10 Panel Holder ANG2508
11 Front Spacer AEC1896
12
13 Panel Cushion V AED1199
14 Panel Cushion H AED1198
15 Protect Panel Assy AMR3304
16 Screw ABZ30P050FZK
17 Screw VMZ30P060FZK
18 Energy Star Label See Contrast table (2)
19 HDTV Label See Contrast table (2)
20 PCB Spacer AEC1913
21 J213 Flexible Flat Cable ADD1193
NSP 22 Flexible Seal (P) AEH1052
23 Power Button AAD4113
24 Coil Spring ABH1108
25 Serial Sheet AAX2609
(1) FRONT CASE SECTION PARTS LIST
Mark No. Description Part No.
Foil Side
2
PDP-503PU
Only
3
17
25
8
10
10
16
16
7
6
10
11
10
16
13
13
15
14
14
16
16
10
12
24
23
16
10
11
11
11
1819
1
21
22
20
(2) CONTRAST TABLE
PDP-503PE/WYVI6 and PDP-503PU/KUC are constructed the same except for the following :
Mark No. Symbol and Description
Part No.
Remarks
PDP-503PE PDP-503PU
WYVI6 KUC
18
19
Energy Star Label
HDTV Label
Not used
Not used
AAX2865
AAX2891

Related product manuals