EasyManua.ls Logo

Porter Mat Mover - Page 18

Default Icon
32 pages
Print Icon
To Next Page IconTo Next Page
To Next Page IconTo Next Page
To Previous Page IconTo Previous Page
To Previous Page IconTo Previous Page
Loading...
Page 14
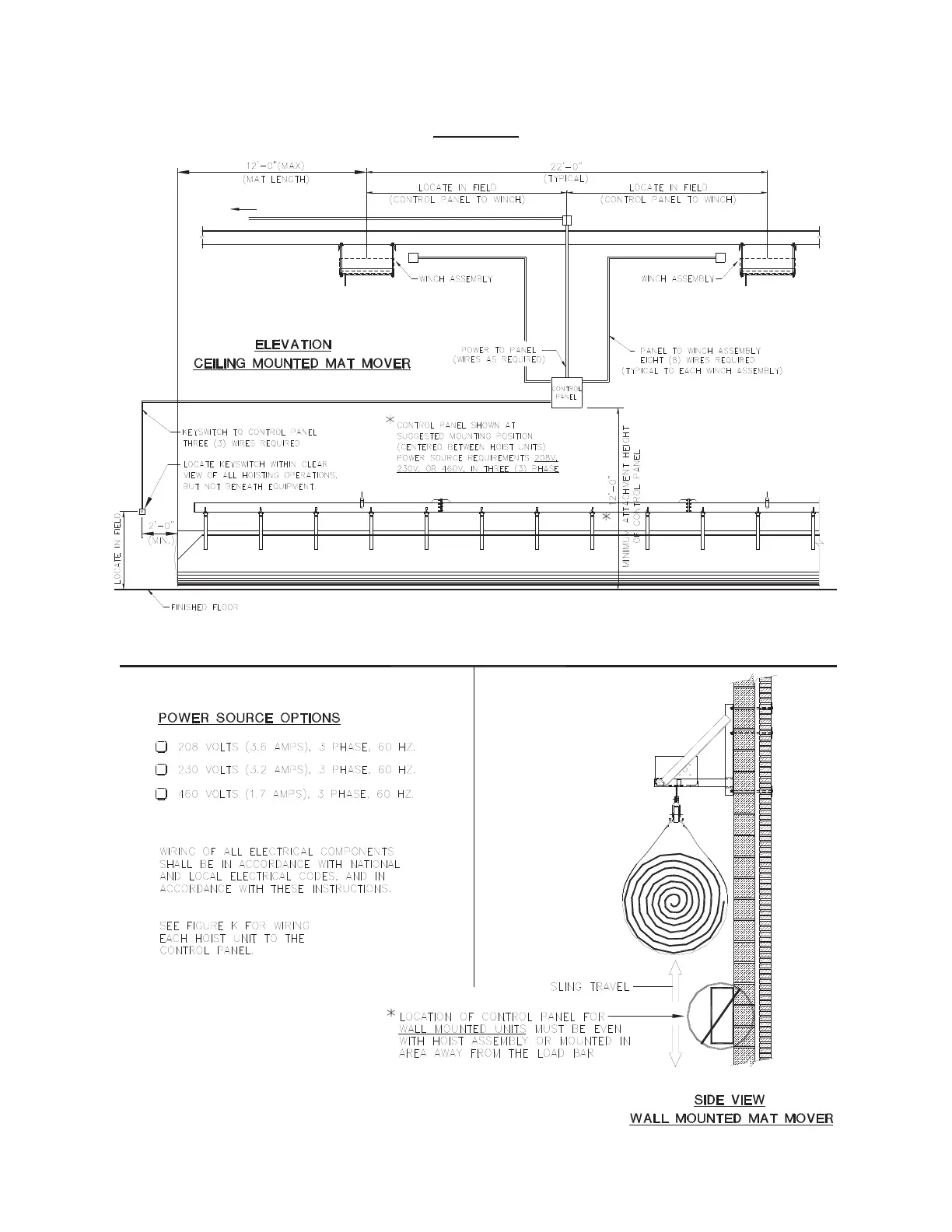
FIGURE J
POWER SOURCE