EasyManua.ls Logo

Potterton Apollo - Dimensions and Fixings; Dimensions

Potterton Apollo
60 pages
Print Icon
To Next Page IconTo Next Page
To Next Page IconTo Next Page
To Previous Page IconTo Previous Page
To Previous Page IconTo Previous Page
Loading...
11
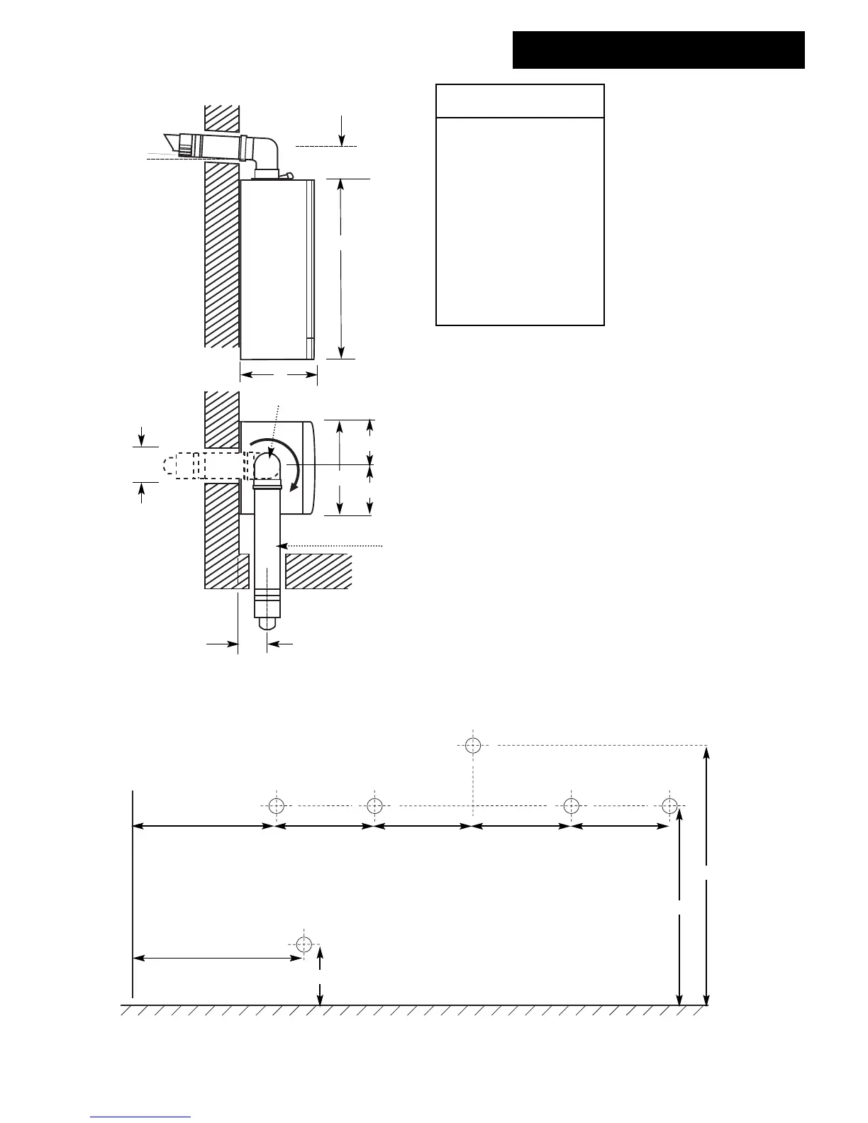
5.0 Dimensions and Fixings
© Baxi Heating UK Ltd 2012
Dimensions
A 780mm
B 345mm
C 450mm
D 116mm Ø Min.
F 145mm
G 132mm
H 225mm
360° Orientation
Tube Ø 100mm
D
C
B
A
G
F
At Least 1.5
o
H
H
65mm 65mm 65mm 65mm
Wall
View from under the appliance
Gas Inlet
Heating
Flow
Domestic Hot
Water Outlet
Cold Water
Inlet
Heating
Return
130mm
165.7mm
95mm
Left Hand Side of
Boiler
127mm
Condensate Drain
40mm

Related product manuals