EasyManua.ls Logo

Potterton Titanium 28 - 5.0 Dimensions and Fixings; 5.1 Boiler Dimensions and Clearances; 5.2 Pipe Connection Layout

Potterton Titanium 28
64 pages
Print Icon
To Next Page IconTo Next Page
To Next Page IconTo Next Page
To Previous Page IconTo Previous Page
To Previous Page IconTo Previous Page
Loading...
11
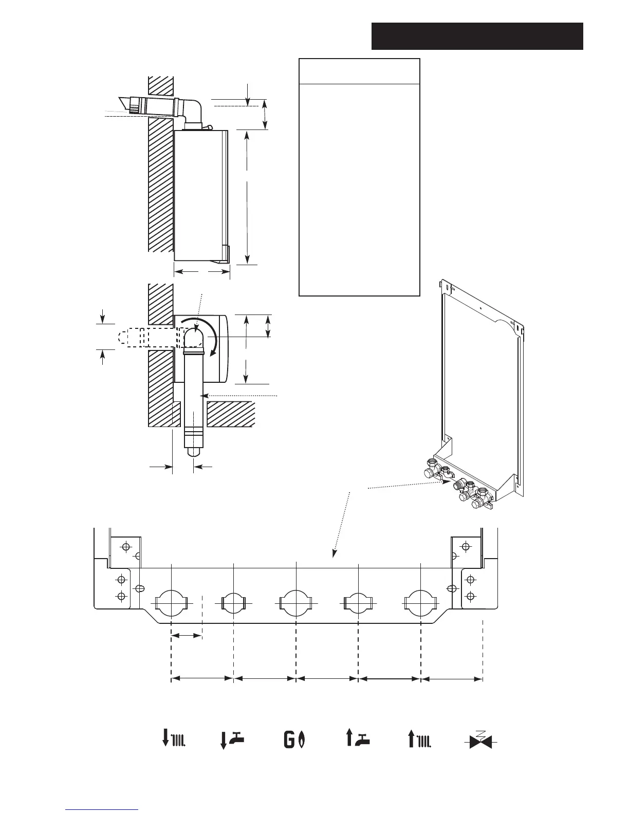
5.0 Dimensions and Fixings
© Baxi Heating UK Ltd 2014
Dimensions
A 780mm
B 345mm
C 450mm
D 116mm Ø Min.
E 185mm
(207mm for 80/125mm
flue systems)
F 145mm
G 131mm
H 180mm
Domestic Hot
Water Outlet
(15mm)
Cold Water
Inlet
(15mm)
Heating
Return
(22mm)
Heating
Flow
(22mm)
Pressure Relief
Valve
(15mm)
Gas
Inlet
(22mm)
65 mm
65 mm 65 mm
65 mm
65 mm
32.5 mm
Condensate
Drain
Tap Rail
360° Orientation
Tube Ø 100mm
D
C
B
A
E
G
F
At Least 1.5°
H

Related product manuals