EasyManua.ls Logo

PowerMax PM - Page 5

PowerMax PM
36 pages
Print Icon
To Next Page IconTo Next Page
To Next Page IconTo Next Page
To Previous Page IconTo Previous Page
To Previous Page IconTo Previous Page
Loading...
PowerMax Pool Heater
Page 5
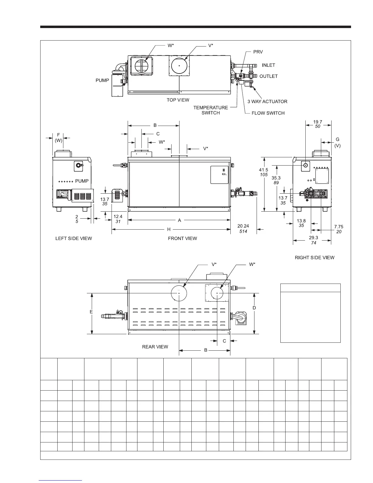
Figure 1. Dimensional Data.
Air Vent Horiz.
Conn. Conn. Vent
Size A B C D E F G H W* V* Pipe
500 33½
85
15¾
40
15
29¾
76
32¾
83
20
22
46
117
6
15
8
20
6
15
750 45½
116
21¾
55
15
29¾
76
32¾
83
20
22
58
147
6
15
10
25
8
20
1000 57½
146
28¾
73
15
29¾
76
32¾
83
20
7
18
70
178
8
20
10
25
8
20
1250 68
172
34
86
10
1
/8
26
30¾
78
29½
75
22
22
80
203
8
20
12
30
8
20
1500 78½
199
39¾
101
10
1
/8
26
30¾
78
29½
75
22
22
91
231
8
20
12
30
8
20
1750 89
226
44½
113
10
1
/8
26
30¾
78
29½
75
22
22
101
256
8
20
14
36
8
20
2000 99½
253
49¾
126
10
1
/8
26
30¾
78
29½
75
22
22
112
284
12
30
14
36
12
30
*Air and vent connections may be on top or back of the PowerMax, and are field convertible. Dimensions in inches
cm
.
Shipping Weight
Size lbs.
kg
500 480
218
750 560
254
1000 670
304
1250 730
331
1500 815
370
1750 880
400
Dimensions shown in
inches
cm

Table of Contents