EasyManua.ls Logo

Primax EASY LINE - Page 43

Default Icon
Print Icon
To Next Page IconTo Next Page
To Next Page IconTo Next Page
To Previous Page IconTo Previous Page
To Previous Page IconTo Previous Page
Loading...
43
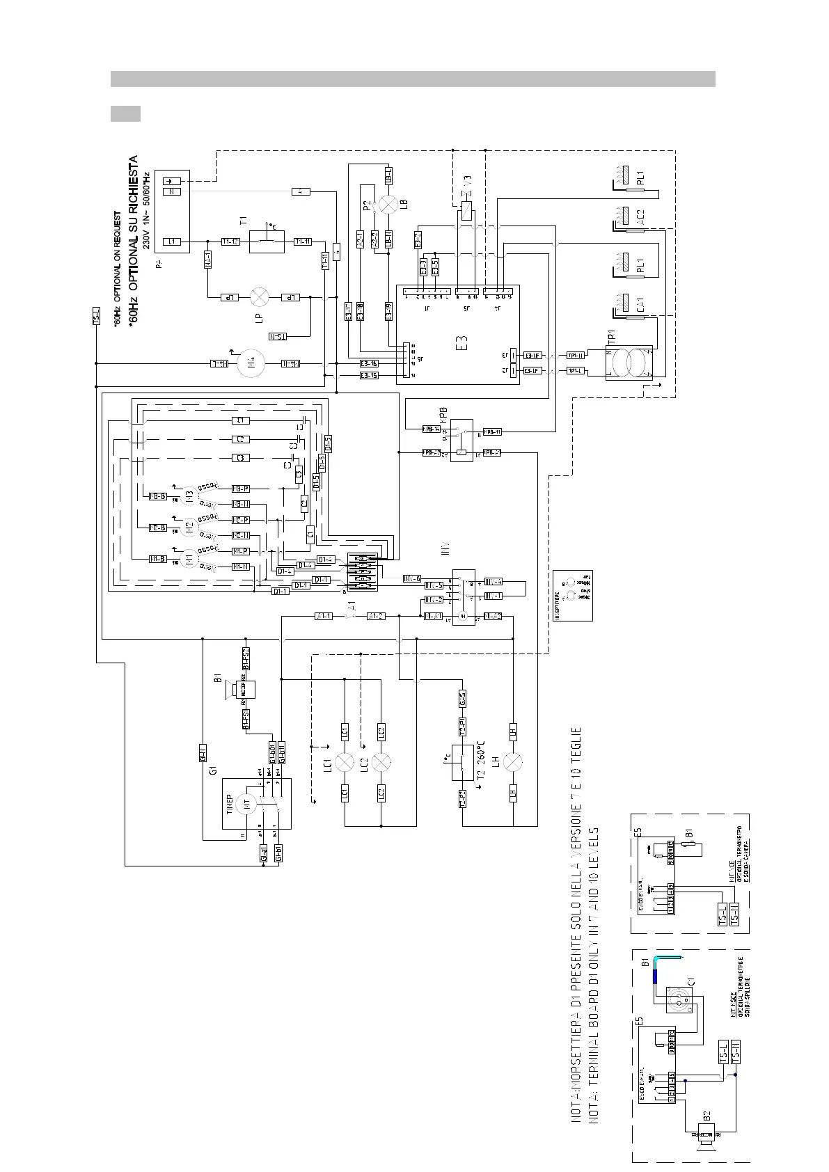
12. SCHEMI ELETTRICI- WIRING DIAGRAMS- ELEKTRO SCHEMA- SCHEMAS ELECRIQUES
ECG

Related product manuals