EasyManua.ls Logo

Primax EASY LINE - Page 54

Default Icon
Print Icon
To Next Page IconTo Next Page
To Next Page IconTo Next Page
To Previous Page IconTo Previous Page
To Previous Page IconTo Previous Page
Loading...
54
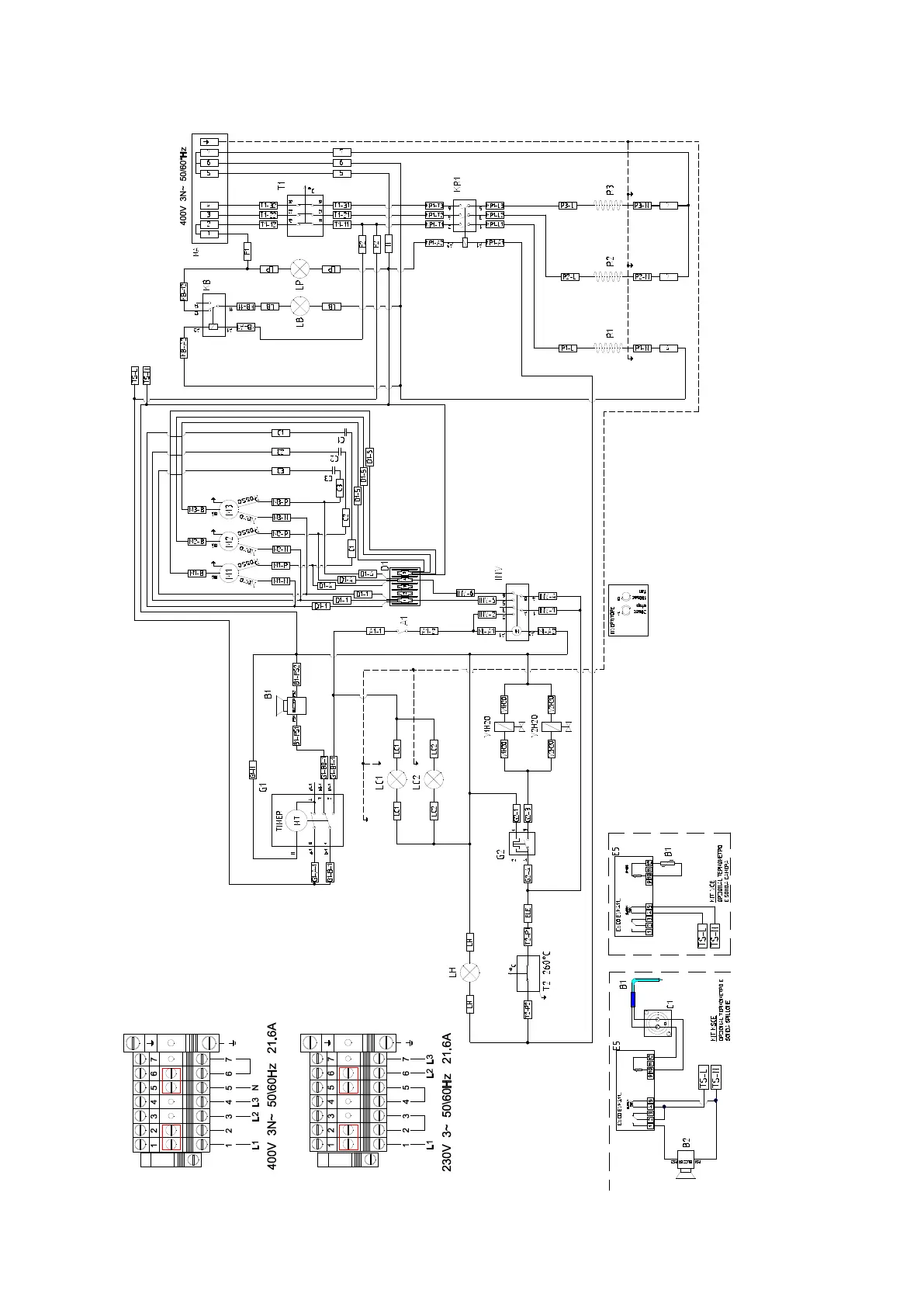
CONVEZIONE/UMIDIFICAZIONE- CONVECTION/HUMIDIFICATION- KONVEKTION/BEFEUCHTUNG-
CONVECTION/HUMIDIFICATION 10 LEVELS GN 1/1, 400x600.

Related product manuals