EasyManua.ls Logo

Prochem LGTPC - Layout with 60 Gallon Waste Tank

Default Icon
143 pages
Print Icon
To Next Page IconTo Next Page
To Next Page IconTo Next Page
To Previous Page IconTo Previous Page
To Previous Page IconTo Previous Page
Loading...
16
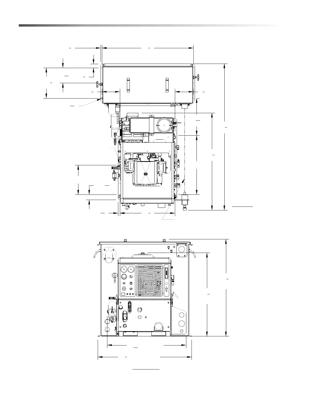
Installation
Layout with 60 Gallon Waste Tank
39
1
2
"
33
7
8
"
CONSOLE
39
3
8
"
WASTE TANK
38
1
8
" WASTE TANK
31
31
32
" CONSOLE
22
3
8
"
6X Ø7/16" X 5/8" SLOT
37
1
8
"
2X 1
1
2
"
2X 6
3
16
"
2X 12
3
8
"
2X 2
3
32
"
2X 12"
2X 24"
59
1
2
"
6X Ø
13
32
"
TOP VIEW
FRONT VIEW
AND WASTE TANK ARE ALIGNED
ENSURE THAT VAC INLETS ON CONSOLE
1
2
"
11
16
"
7
1
4
"
15
3
32
"
7
1
2
"
86411060 Manual Operators - Legend GT

Table of Contents

Related product manuals