EasyManua.ls Logo

Prochem LGTPC - Layout with 100 Gallon Waste Tank

Default Icon
143 pages
Print Icon
To Next Page IconTo Next Page
To Next Page IconTo Next Page
To Previous Page IconTo Previous Page
To Previous Page IconTo Previous Page
Loading...
18
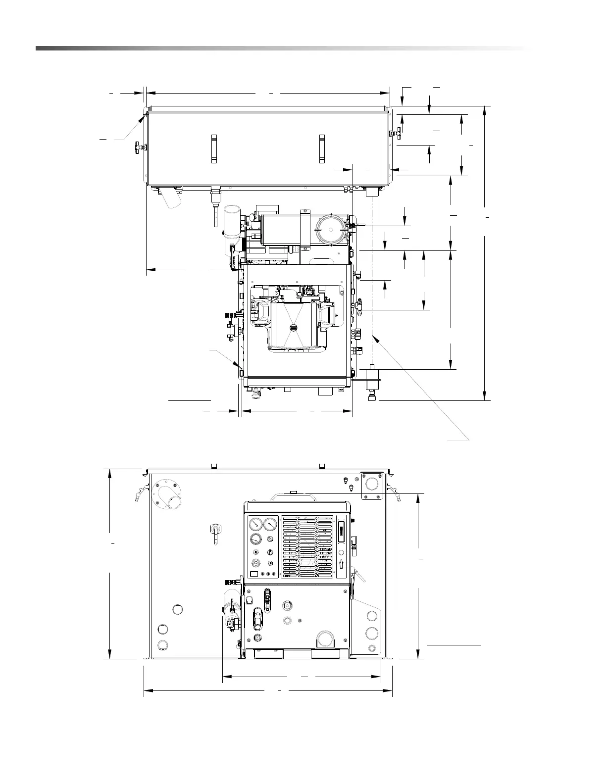
Installation
Layout with 100 Gallon Waste Tank
9X Ø7/16" X 5/8" SLOT
19
1
4
"
7
1
2
"
15
3
32
"
2X 12
3
8
"
2X 12"
59
1
2
"
LENGTH
ENSURE THAT VAC INLETS ON CONSOLE
AND WASTE TANK ARE ALIGNED
22
3
8
"
11
16
"
2X 6"
2X 1
11
16
"
2X 6
3
16
"
49
1
8
"
1
2
"
6X Ø
13
32
"
TOP VIEW
CONSOLE
WASTE TANK
33
3
8
"
CONSOLE
HEIGHT
50
1
8
"
FRONT VIEW
38
3
8
"
WASTE
TANK
31
31
32
"
2X 24"
4
31
32
"
86411060 Manual Operators - Legend GT

Table of Contents

Related product manuals