EasyManua.ls Logo

Prochem LGTPC - Page 35

Default Icon
143 pages
Print Icon
To Next Page IconTo Next Page
To Next Page IconTo Next Page
To Previous Page IconTo Previous Page
To Previous Page IconTo Previous Page
Loading...
33
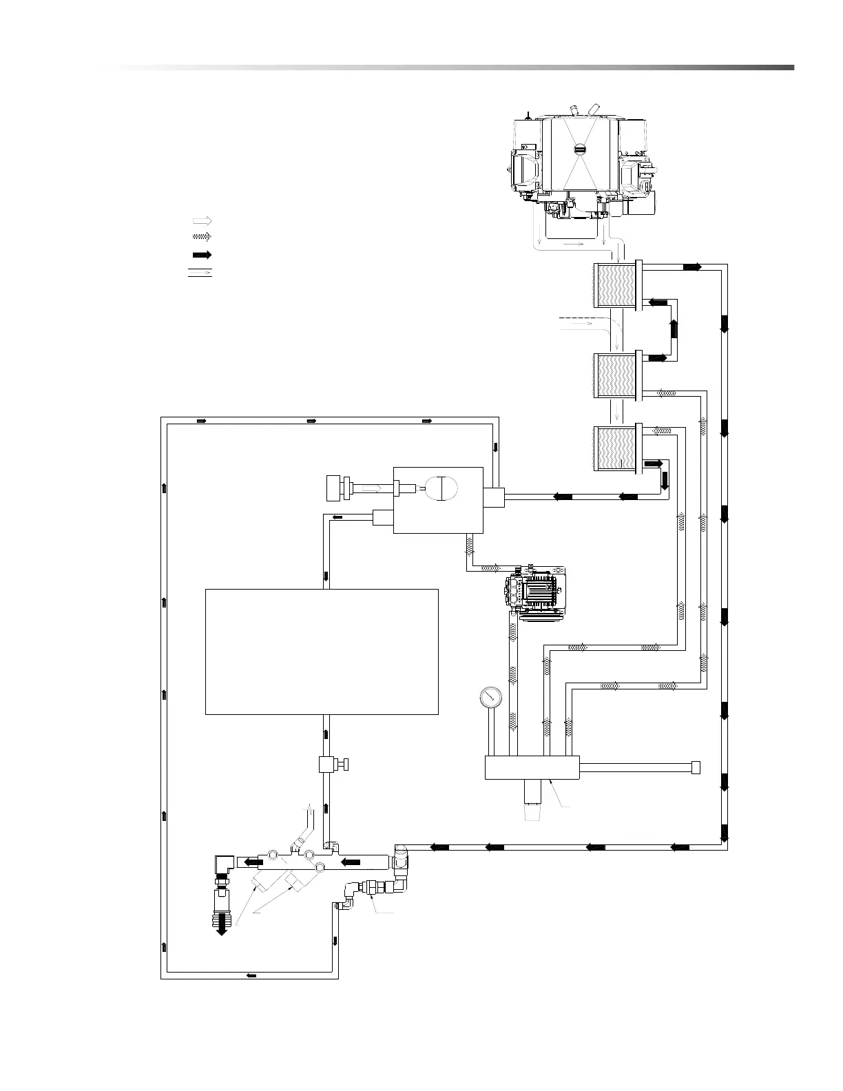
Operations
SOLUTION
OUTLET
WATER
INLET
CHEMICAL
INJECTION
WASTE TANK
WATER BOX
SOLUTION PUMP
KOHLER ENGINE
HEAT EXCHANGER
CORES
TEMPERATURE
RELIEF VALVE
PRESSURE
GAUGE
CHECK VALVE
PRESSURE REGULATOR
= COLD WATER
= WARM WATER
= HOT WATER
= HOT EXHAUST AIR
TEMPERATURE
CONTROL VALVE
SOLUTION SCREEN
TEMPERATURE
BALANCE ORIFICE
HOT AIR FROM
VACUUM PUMP
REAR
FRONT
PULSE HOSE
86411060 Manual Operators - Legend GT

Table of Contents

Related product manuals