EasyManua.ls Logo

Quadra-Fire 4300 - Chimney Termination Requirements; 2-10-03 Rule

Quadra-Fire 4300
52 pages
Print Icon
To Next Page IconTo Next Page
To Next Page IconTo Next Page
To Previous Page IconTo Previous Page
To Previous Page IconTo Previous Page
Loading...
August 3, 2015
7037-135L
Page 19
4300 Wood Stove Series (ACC)
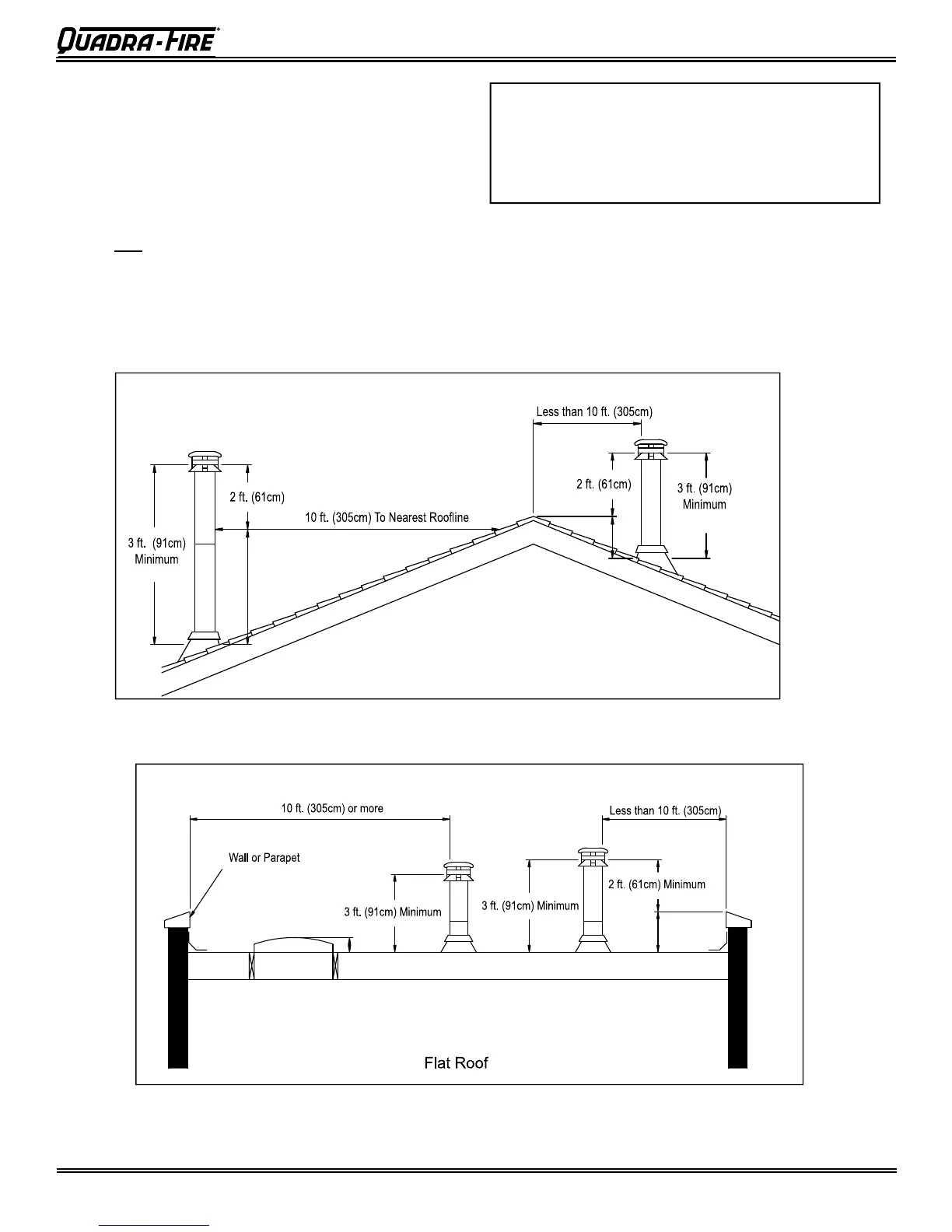
D. Chimney Termination Requirements
Follow manufacturers instructions for clearance, securing,
ashing and terminating the chimney.
Must have an approved and listed cap
Must not be located where it will become plugged by
snow or other material
Must terminate at least 3 feet (91cm) above the roof
and at least 2 feet (61cm) above any portion of the
roof within 10 feet (305cm)
Must be located away from trees or other struc-
tures
These are safety requirements and are not meant to assure proper ue draft.
Figure 19.1
E. 2-10-3 Rule
Figure 19.2
NOTE:
Chimney performance may vary.
Trees, buildings, roof lines and wind conditions affect
performance.
Chimney height may need adjustment if smoking or
overdraft occurs.
Pitched Roof

Table of Contents

Related product manuals