EasyManua.ls Logo

Rain Bird ESP-8 - Connect Field Wiring; Station Valve Wiring; Master Valve; Pump Start Relay Wiring

Rain Bird ESP-8
15 pages
Print Icon
To Next Page IconTo Next Page
To Next Page IconTo Next Page
To Previous Page IconTo Previous Page
To Previous Page IconTo Previous Page
Loading...
12Technical Support: 1-800-RAIN BIRD
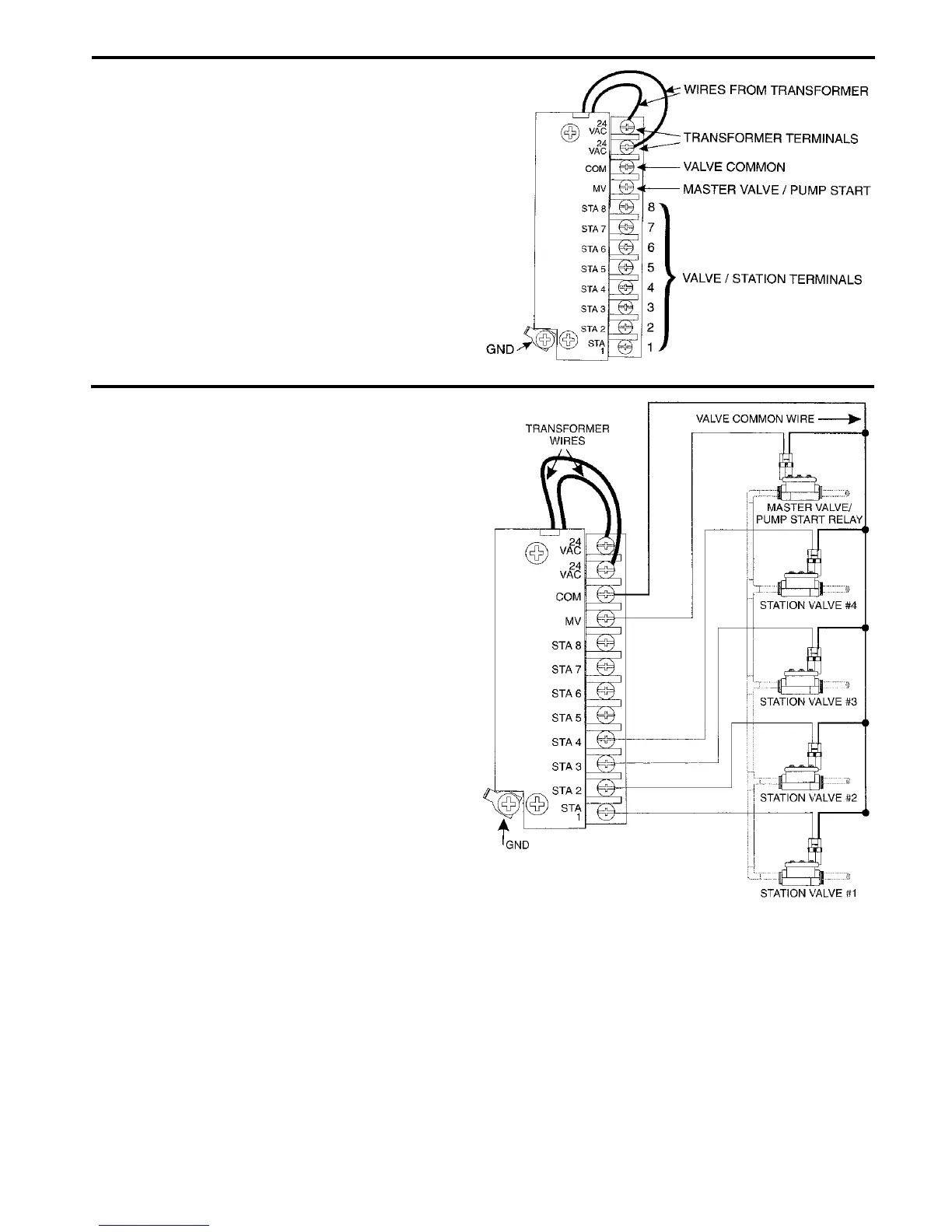
Connect Field Wiring
The ESP's terminal strip, shown in this illustration,
provides fast screw connections for field wires.
Œ Wires connected to the terminal strip should be
stripped to expose 1/2" of conductor at the end.
To connect field wires, loosen the screw terminal.
Insert the stripped wire around the base of the
screw. Then tighten the screw terminal to grip the
wire.
ŽTug gently on each wire to make sure it's securely
connected.
Station Valve Wiring
Connect each valve by its own separate power wire
to one of the numbered terminals on the ESP termi-
nal strip, as shown in the illustration.
Connect a common wire to one of the leads on each
valve. Connect the other end of the common wire to
the COM terminal on the ESP terminal strip. Wire
used to connect the valves must be code-approved
for underground installation. Bring all wires up
through the right-hand hole in the bottom of the cabi-
net.
Master Valve / Pump Start Relay
Wiring
NOTE: Complete this section only if your system
requires a master valve (an automatic valve in-
stalled on the mainline pipe upstream from the
station valves) or a 24-Volt pump start relay.
Connect the master valve / pump start relay wiring to
the MV terminal and COM terminal as shown in the
illustration.

Related product manuals