EasyManua.ls Logo

RAMSET RAM-1000 UL - Pad Construction

RAMSET RAM-1000 UL
16 pages
Print Icon
To Next Page IconTo Next Page
To Next Page IconTo Next Page
To Previous Page IconTo Previous Page
To Previous Page IconTo Previous Page
Loading...
RAMSET
z
RAMSET
z
RAMSET
RAMSET
z
RAMSET
z
RAMSET
- 4 -
These Sliding Gate Operators are factory preset for Left Hand Installations.
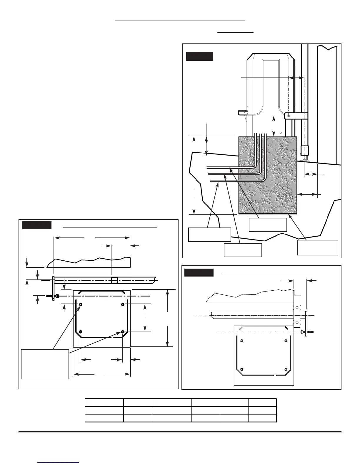
PAD CONSTRUCTION:
Dimensions given for pad are based on
soil bearing shear of 2000 P.S.F. These fig-
ures may have to be adjusted depending on
local soil condition.
1. Construct form for mounting pad according to
dimensions shown on this page.
2. Locate mounting pad according to dimensions
given in illustration.
3. Level top edge of form.
4. Set reinforcing bars and wire mesh.
5. Mix concrete; pour mixture into form. Tamp
mixture. Level and finish surface after pouring
is complete.
6. Allow pad to cure 48 hours, and remove
forms.
Figure 1
6-1/2”
6”
MIN
4” MIN
WALL
4”
6-1/2”
24”
Conduit for
power
Conduit for
Master-Slave
Conduit for low
voltage wires
18” x 18” x 24”
Concrete Pad
24”
6”
4”
4” MIN
18”
“B”
4-1/2”
“C”
18”
concrete
concrete
“A”
Gate
L
C
Wall
Figure 2
LH installation gate shown closed
Mark centers and
install four 1/2-13
UNC Red-head
Anchor Bolts
4” MIN
Gate
L
C
Wall
Figure 3
LH installation gate shown open
INSTALLA
TION SPECIFICATIONS
MODEL Dim "A" Dim "B" Dim "C" Dim "D" Dim "E"
RAM-1000 UL 13-3/4" 8-1/2" 2-1/8" 14" 8-1/2"
RAM-5500 UL 13.902 8.625 or 6.625 2.049 8.5 13.875

Related product manuals