EasyManua.ls Logo

Rangemaster 90 - Fitting a stability bracket; Gas Connection; Pressure testing

Rangemaster 90
40 pages
Print Icon
To Next Page IconTo Next Page
To Next Page IconTo Next Page
To Previous Page IconTo Previous Page
To Previous Page IconTo Previous Page
Loading...
28
Fitting a stability bracket
A stability bracket or chain (not supplied by with the
cooker) should be fi tted when the cooker is connected
to a fl exible gas supply.
When fi tting a stability bracket read these instructions
together with the leafl et supplied with the bracket.
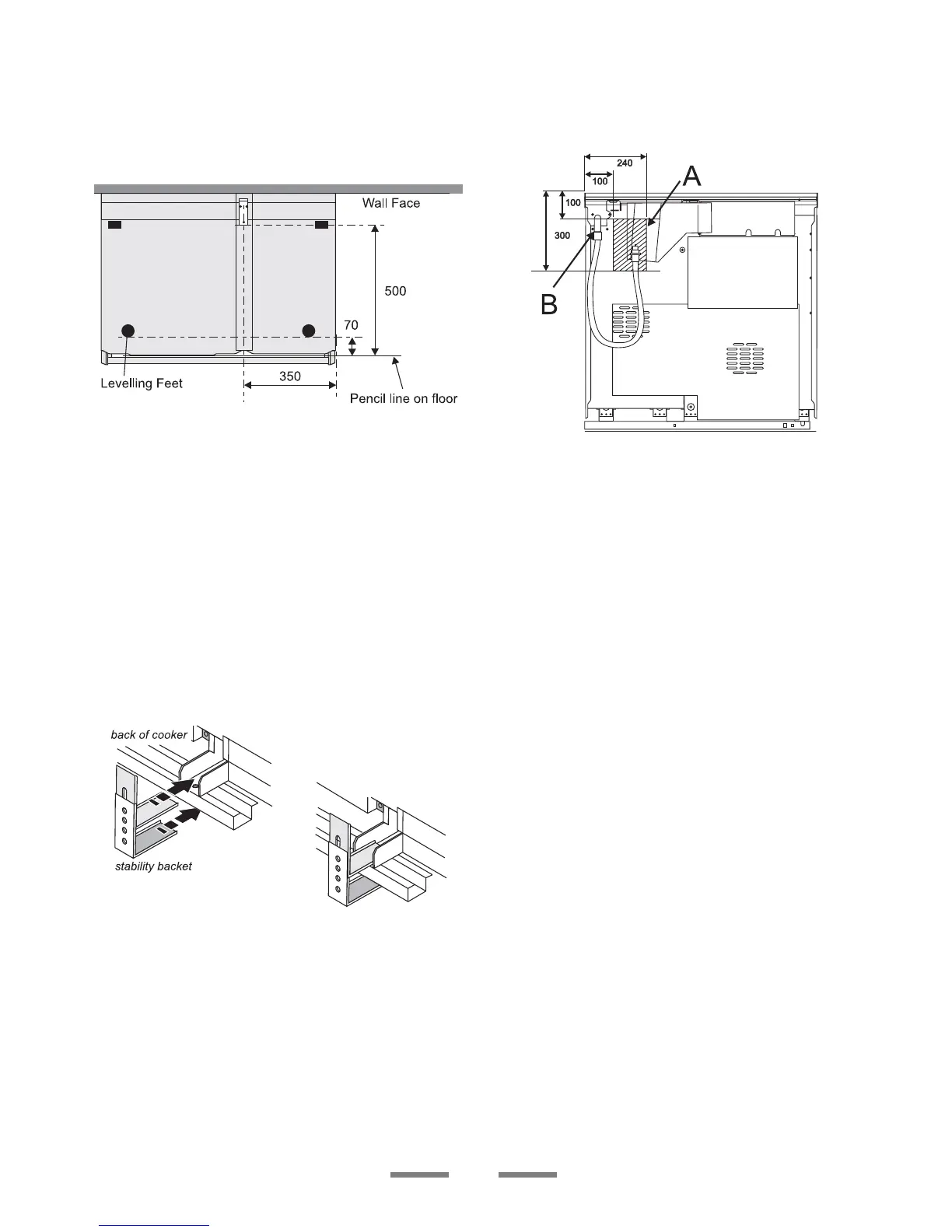
1. Place the cooker in its intended position and level
the cooker.
2. Draw a pencil line 70mm from the front edge of the
levelling feet.
3. Mark the centre line for the bracket by measuring
550mm from the left hand side of the cooker.
4. Lower the front roller and move the cooker forward.
5. Measure back from the pencil line 550mm to locate
the front edge of the bracket. Fix the bracket to the
oor.
6. Measure the height from fl oor level to engagement
edge in back of cooker. Add 3mm to this dimension
and assemble the stability bracket to this height. (i.e.
from fl oor level to underside of the top member) and
ensure the bracket does not foul the oven burner
assembly.
Gas Connection
The Gas sup ply needs to terminate with a down facing
bayonet. The rear cover boxes limit the position of the
supply point.
view from the rear
A position for gas supply connector
B appliance gas inlet
Because the height of the cooker can be adjusted and
each connection is different it is diffi cult to give precise
dimensions. Ideally the house supply bayonet should
be in the shaded area shown in the diagram. Although
a 900mm hose can be used, a 1250mm hose will allow
slightly more fl exibility in the positioning of the bayonet
and make moving the cooker easier. The hose should
be fi tted so that both inlet and outlet connections are
vertical so that the hose hangs downwards.
The connector is located just below the hotplate level at
the rear of the cooker.
For Natural Gas the fl exible hose must be in
accordance with B.S.669.
If in doubt contact, your supplier.
Screw connect the threaded end of the hose into the
gas inlet in the underside of the connector block on the
back of the cooker.
After completing the gas connection, check the cooker
is gas sound with a pressure test.
Pressure testing
The gas pressure can be measured at one of the centre
hotplate burner injectors (not the Wok burners). Lift off a
burner head. Fit the pressure gauge to the injector. Turn
on the hotplate burner and turn on and light one of the
other hotplate burners.
For Natural Gas cookers the pressure should be
20mbar.
For LP Gas cookers the pressure should be 29mbar
for Butane
37mbar for Propane.
Reassemble burner top, making sure it is re as sem bled
in the correct way on the burner body.

Related product manuals