EasyManua.ls Logo

Rangemaster Infusion-110 - Page 34

Rangemaster Infusion-110
40 pages
Print Icon
To Next Page IconTo Next Page
To Next Page IconTo Next Page
To Previous Page IconTo Previous Page
To Previous Page IconTo Previous Page
Loading...
30
P1
P2
P3
1
2
4
3
5
P038482
P095199
2
P2
P1
1
P095199
2
P2
P1
1
2146
br bbbb
r
b
b
r
y
b
b
br
v
bk
bk
v
v
v
br
y
b
y
bk
v
y
br
b
br
b
br
b
bk
b
g/y
v
y
y
or
or
g/y
r
r
bk
br
br
y
v
w
b
bk
bk
v
br
b
r
b
b
v
b
b
r
r
r
v
v
y
y
w
w
b
r
b
r
b
b
bbr br
br
b
b
b
b
b
bk
br br b
br
v
E
A2
C
A1
L
H
G1
B3
B4
B5
B2
B1
D3
J
G2
H
F
D1
J
D2
D4
K
J
A3
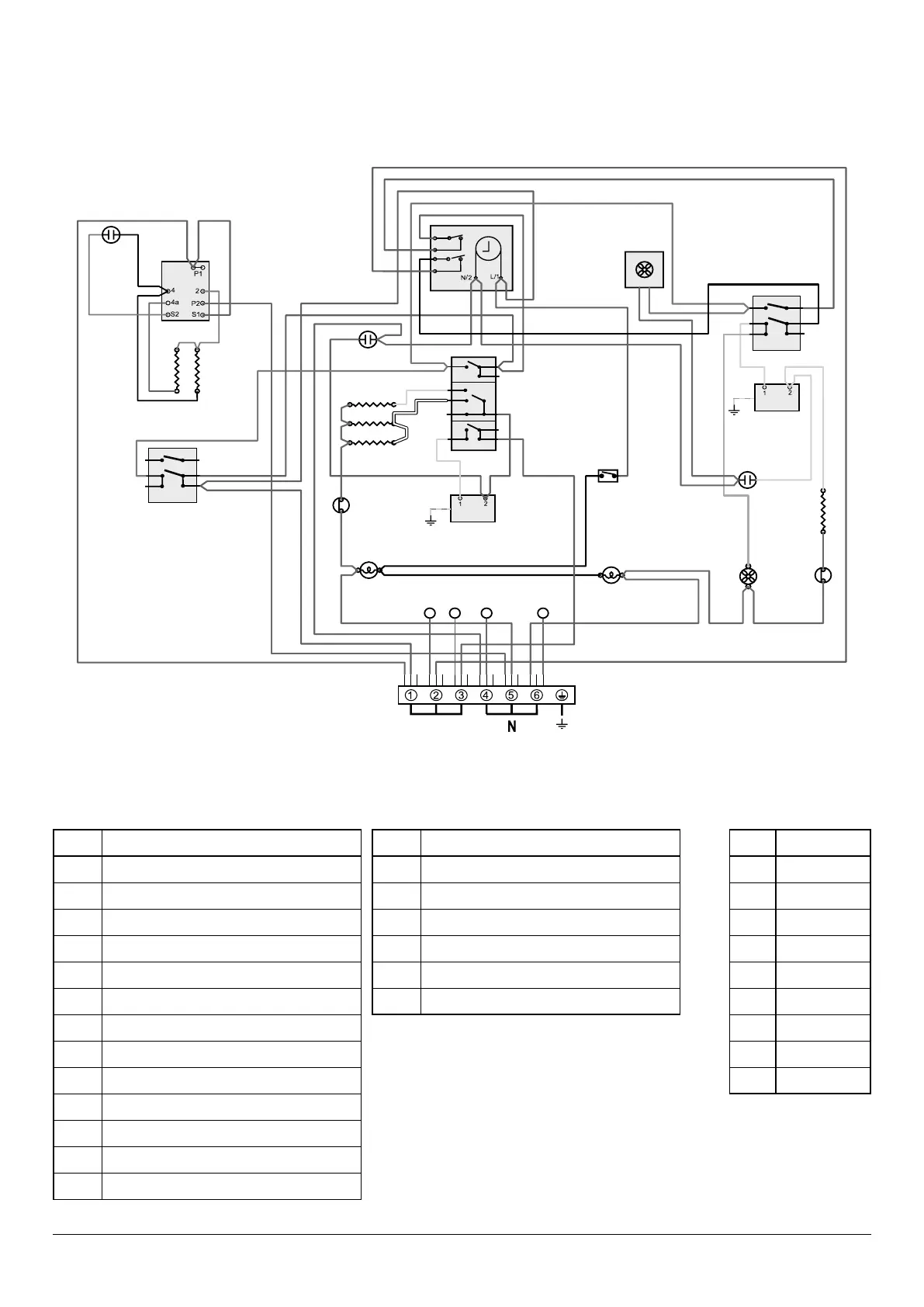
Key
The connections shown in the circuit diagram are for single-phase. The ratings are for 230 V 50 Hz.
Code Description
A1
Grill front switch
A2
Grill energy regulator
A3
Grill elements
B1
Zoned oven front switch
B2
Zoned oven thermostat
B3
Zoned oven browning element (inner pair)
B4
Zoned oven top element (outer pair)
B5
Zoned oven base element
C
Clock
D1
Right-hand oven front switch
D2
Right-hand oven thermostat
D3
Right-hand oven fan
D4
Right-hand oven element
Code Description
F
Oven light switch
G1
Left-hand oven light
G2
Right-hand oven light
H
Thermal cut-out
J
Neon
K
Cooling fan
Code Colour
b
Blue
br
Brown
bk
Black
or
Orange
r
Red
v
Violet
w
White
y
Yellow
g/y
Green/yellow

Related product manuals