EasyManua.ls Logo

Rangemaster Nexus 90 Induction - Circuit Diagrams

Rangemaster Nexus 90 Induction
40 pages
Print Icon
To Next Page IconTo Next Page
To Next Page IconTo Next Page
To Previous Page IconTo Previous Page
To Previous Page IconTo Previous Page
Loading...
28
Key
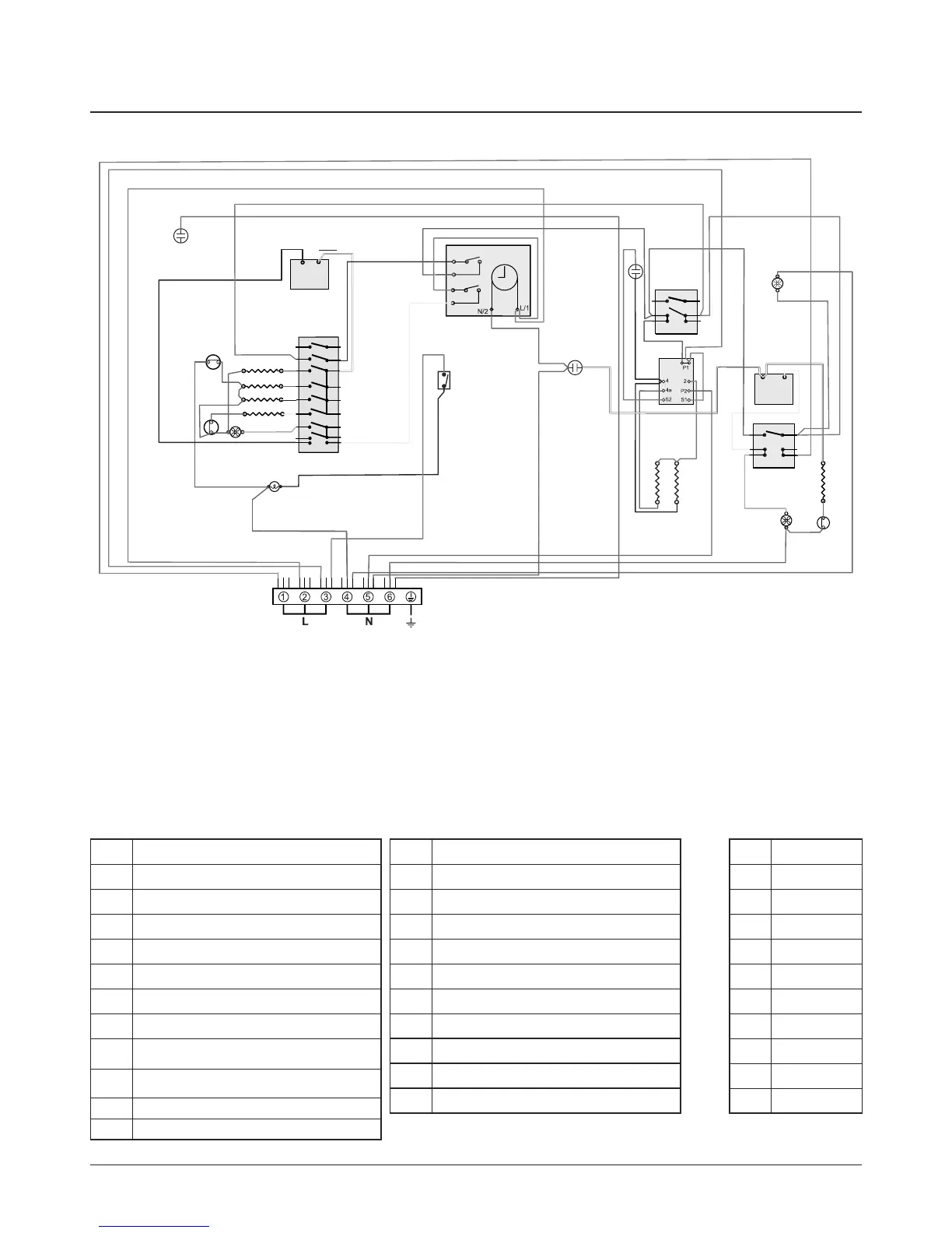
The connections shown in the circuit diagram are for single-phase. The ratings are for 230 V 50 Hz.
1
2
E
g
A3
B2
B3
B4
B5
B6
B7
C
D1
D3
D4
H1
I
I
I
H2
B1
J
J
r
bk
J
A4
A2
K
P028728
6
P6
5
P5
4
P4
7
P7
8 P8
2
P2
1
P1
3 P3
B2
P095199
1
2
P2
P1
P095199
1
2
P2
P1
P095199
1
2
P2
P1
D2
b
b
b
b
b
b
b
b
b
b
b
b
b
b
br
br
or
or
y
b
w
w
y
bk
b
bk
r
r
bk
r
v
v
br
br
b
v
w
r
y
y
w
bk
or
w
bk
b
v
w
br
r
bk
w
r
bk
v
v
w
br
bk
r
r
y
r
v
b
bk
bk
br
b
P095199
1
2
P2
P1
P095199
1
2
P2
P1
P095199
1
2
P2
P1
A1
r
r
v
v
v
Code Description
A1 Grill front switch
A2 Grill energy regulator
A3 Grill element left-hand side
A4 Grill element right-hand side
B1 Left-hand multifunction oven thermostat
B2 Left-hand multifunction oven control
B3 Left-hand multifunction oven base element
B4
Left-hand multifunction oven top element
(outer pair)
B5
Left-hand multifunction oven browning
element (inner pair)
B6 Left-hand multifunction oven fan element
B7
Left-hand multifunction oven fan
Code Description
C Clock
D1 Right-hand fan oven thermostat
D2 Right-hand fan oven control
D3 Right-hand fan oven element
D4 Right-hand fan oven fan
H1 Oven light switch
H2 Oven light
I Thermal cut-out
J Neon
K Cooling fan
Code Colour
b Blue
br Brown
bk Black
or Orange
r Red
v Violet
w White
y Yellow
g/y Green/yellow
gr Grey
8. Circuit Diagrams

Related product manuals