EasyManua.ls Logo

Rational CMP 101E - Schematic Drawing 6 X2;1 GN

Rational CMP 101E
44 pages
Print Icon
To Next Page IconTo Next Page
To Next Page IconTo Next Page
To Previous Page IconTo Previous Page
To Previous Page IconTo Previous Page
Loading...
V-09 05/2014 - 32 -
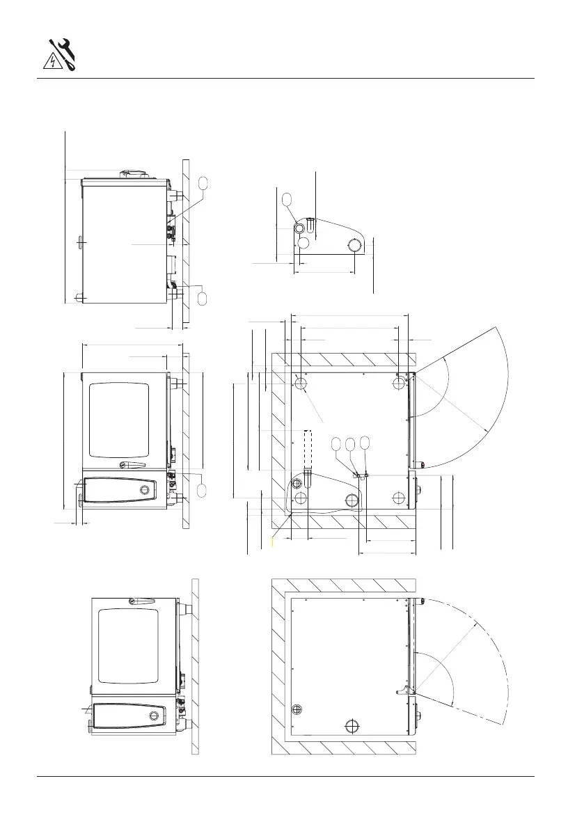
Schematic drawing 6x2/1 GN
n
88
[
3-1/2
]
110
~
R
737
[
29
]
782
[
30-3/4
]
125
[
4-7/8
]
50
[
2
]
1067
[
42
]
970
[
38-1/4
]
72 [2-7/8]
84 [3-3/8]
67
[
2-5/8
]
893
[
35-1/8
]
87
[
3-3/8
]
761
[
30
]
129
[
5-1/8
]
385 [15-1/8]
445
[
17-1/2
]
260
[
10-1/4
]
265 [10-1/2]
764
[
30-1/8
]
75
[
3
]
915
[
36
]
76
[
3
]
120
~
R
737
[
29
]
749
[
29-1/2
]
87
[
3-3/8
]
n
50
[
2
]
n
50
[
2
]
n
50
[
2
]
200
[
7-7/8
]
44
[
1-3/4
]
475
[
18-3/4
]
685 [2-3/4]
n
603 [2-3/8]
450
[
17-3/4
]
n 
 nnn n
110
nn
 n 
  
6
4
5
1
2
3
7
1 = Common water supply (cold water) (standard
as shipped)
2 = Water supply, cold water*
3 = Water supply, soft water*
4 = Drain
5 = Electrical connection
6 = Earth bonding
7 = Venting pipe 2 3/8"
Measures in mm (inch)
*= option after removal of T-connection

Related product manuals