EasyManua.ls Logo

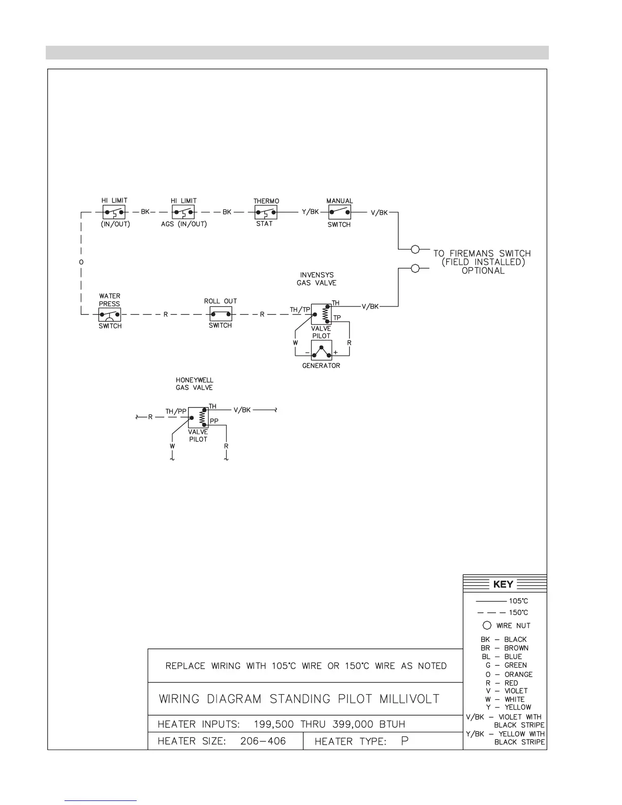
Raypak 337A - Wiring Diagrams; Millivolt Wiring Diagram

Raypak 337A
60 pages
Print Icon
To Next Page IconTo Next Page
To Next Page IconTo Next Page
To Previous Page IconTo Previous Page
To Previous Page IconTo Previous Page
Loading...
28
WIRING DIAGRAM - MILLIVOLT (MECHANICAL THERMOSTAT)

Table of Contents

Other manuals for Raypak 337A

Related product manuals