EasyManua.ls Logo

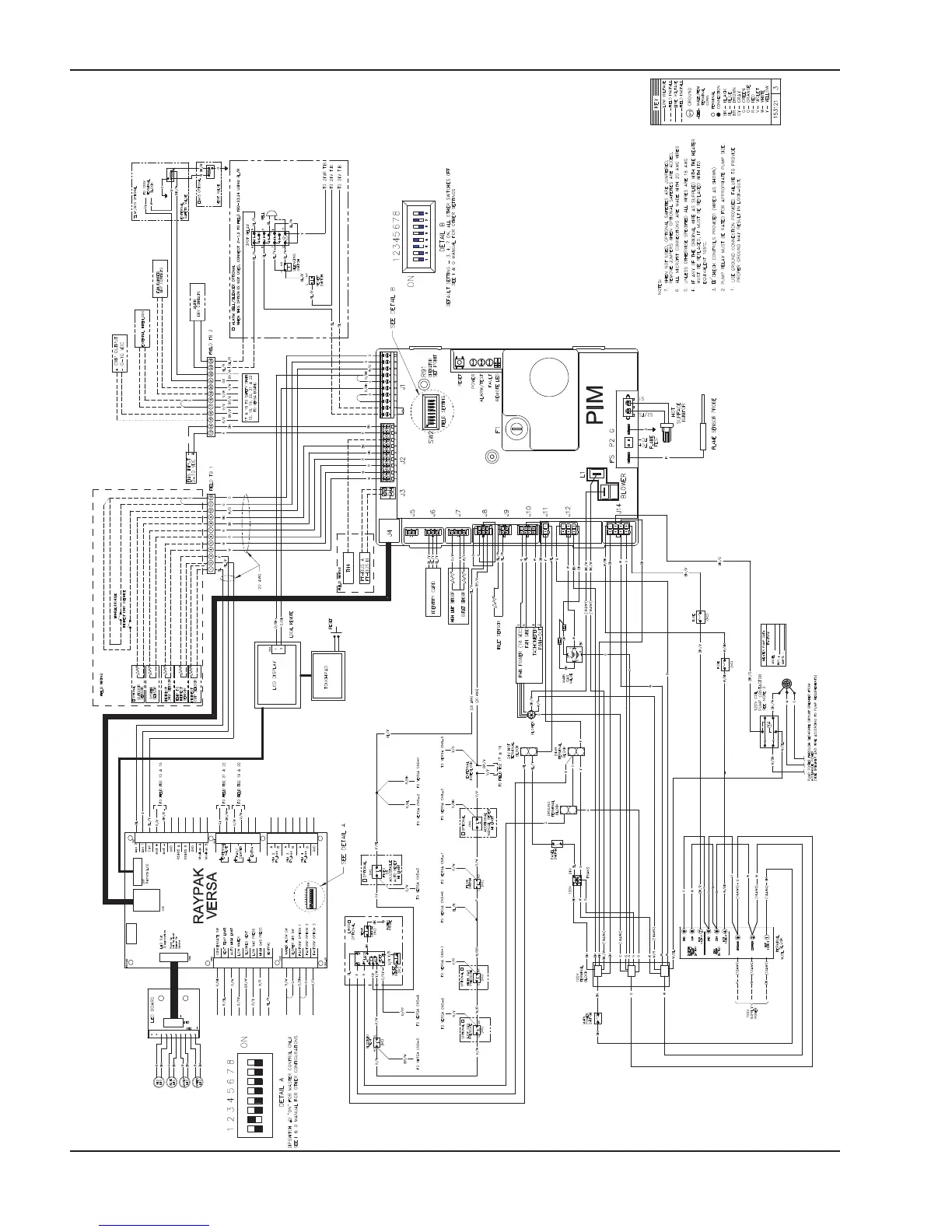
Raypak MVB 1104A - Wiring Diagram

Raypak MVB 1104A
64 pages
Print Icon
To Next Page IconTo Next Page
To Next Page IconTo Next Page
To Previous Page IconTo Previous Page
To Previous Page IconTo Previous Page
Loading...
44
WIRING DIAGRAM - Models 504A–2004A

Related product manuals