EasyManua.ls Logo

Regency F2500 - Masonry Chimney; Masonry Fireplace; Factory Built Chimney

Regency F2500
48 pages
Print Icon
To Next Page IconTo Next Page
To Next Page IconTo Next Page
To Previous Page IconTo Previous Page
To Previous Page IconTo Previous Page
Loading...
F2500 Regency Freestanding Woodstove
13
installation
Factory Built Chimney
When a metal prefabricated chimney is used, the manufacturer's installation instructions must be followed. You must also purchase and install the
ceiling support package or wall pass-through and "T" section package, firestops (where needed), insulation shield, roof flashing, chimney cap, etc.
Maintain proper clearance to the structure as recommended by the manufacturer. The chimney must be the required height above the roof or other
obstructions for safety and proper draft operation. The space heater is to be connected to a factory-built chimney conforming to CAN/ULC-S629,
Standard for 650
0
C Factory-Built Chimneys.
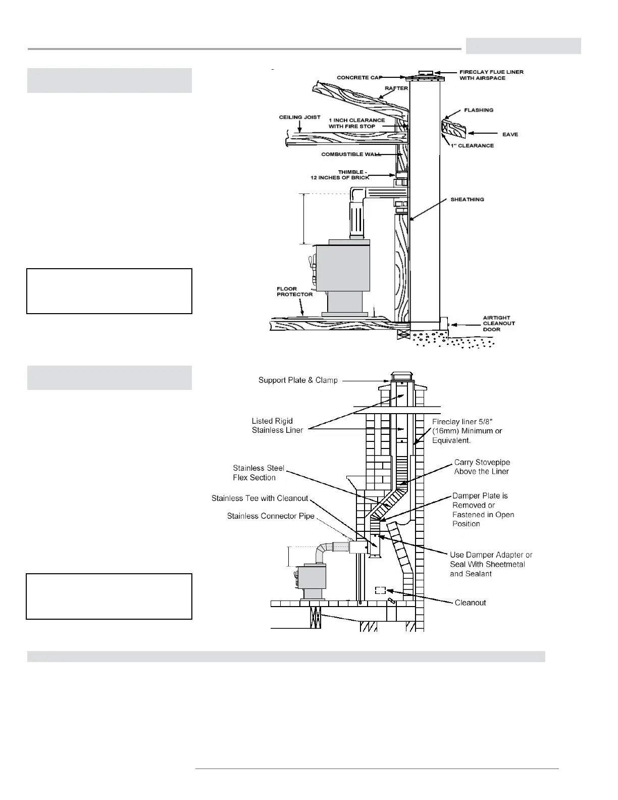
Masonry
Chimney
Ensure that a masonry chimney meets the mini-
mum standards of the National Fire Protection
Association (NFPA) by having it inspected by
a professional. Make sure there are no cracks,
loose mortar or other signs of deterioration and
blockage. Have the chimney cleaned before the
stove is installed and operated. When connect-
ing the stove through a combustible wall to a
masonry chimney, special methods are needed.
Ensure that an effective vapour barrier at the
location where the chimney or other component
penetrates to the exterior of the structure.
Masonry
Fireplace
There are listed kits available to connect a stove
to a masonry fireplace. The kit is an adapter
that is installed at the location of the fireplace
damper. The existing damper may have to be
removed to allow installation.
Ensure that an effective vapour barrier at the
location where the chimney or other component
penetrates to the exterior of the structure.
This unit is designed to use either a 5.5" (140mm)
or 6" (152mm) flue liner only in the confines of
the masonry chimney as shown.
Minimum 18" (457mm)
to centerline
Minimum
18"
(457mm
)
to
centerline
When referencing installation or connection to
masonry fireplaces or chimneys, the masonry
construction must or shall be code complying.
When referencing installation or connection to
masonry fireplaces or chimneys, the masonry
construction must or shall be code complying.

Other manuals for Regency F2500

Related product manuals