EasyManua.ls Logo

Regency P33-NG4 - Combustible Mantel Clearances

Regency P33-NG4
64 pages
Print Icon
To Next Page IconTo Next Page
To Next Page IconTo Next Page
To Previous Page IconTo Previous Page
To Previous Page IconTo Previous Page
Loading...
Regency
®
P33-4 Zero Clearance Direct Vent Gas Fireplace
11
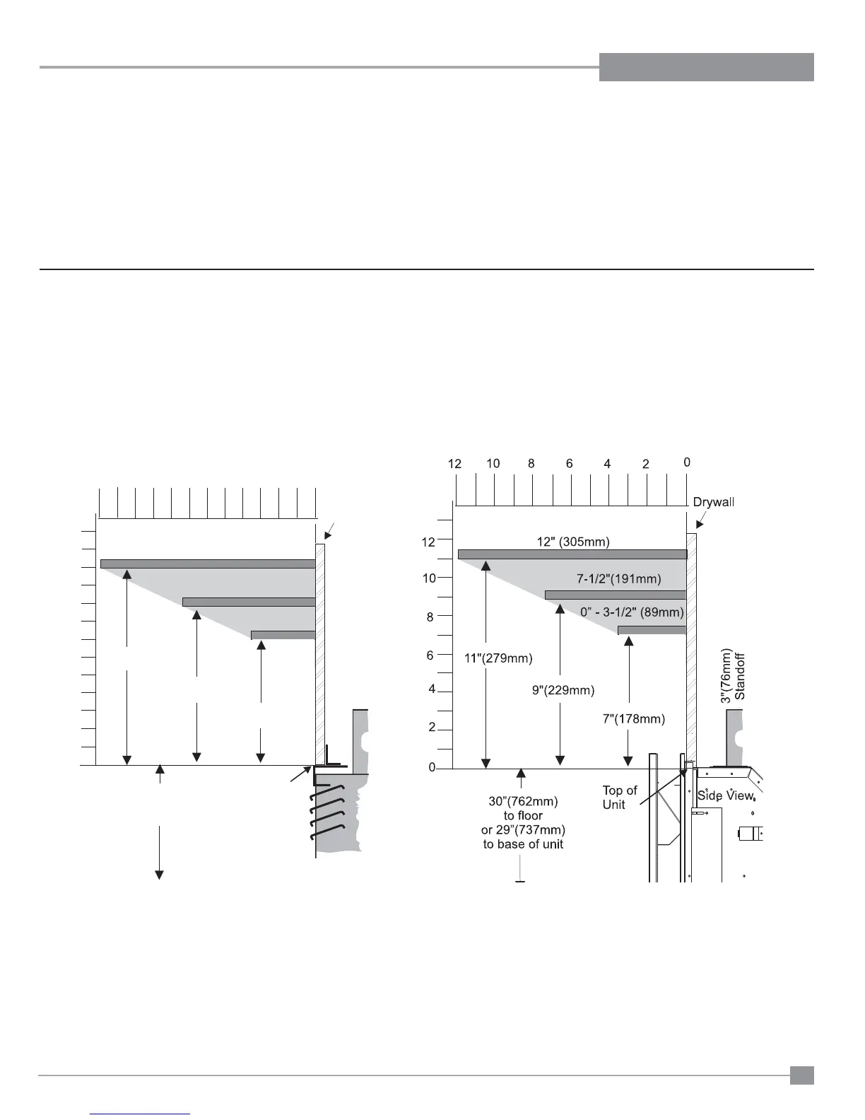
INSTALLATION
COMBUSTIBLE MANTELS
Because of the extreme heat this replace emits, the mantel clearances are critical. Combustible mantel clearances from top of unit are shown in the
diagram below.
Note: A non-combustible mantel may be installed at a lower height if the framing is made of metal studs covered with a non-combustible board.
This drawing is to scale at 1:6 (one inch = 6 inches). Mantel can be installed anywhere in shaded area or higher using the above scale.
Note: Ensure the paint that is used on the mantel and the facing is "heat resistant" or the paint may discolour.
Combustible mantel leg clearances as per diagrams below:
Drywall
Mantel Clearances
with Flush, Full Screens or Bay Glass
2
0
12
6
4
810
2
0
12
6
4
8
10
Side View
Top of
Unit
12" (305mm)
0” - 3-1/2" (89mm)
7-1/2"(191mm)
11"(279mm)
7"(178mm)
9"(229mm)
29"(737mm)
to floor
3"(76mm)
Standoff
Mantel Clearances with
Contemporary Faceplate

Table of Contents

Related product manuals