EasyManua.ls Logo

RHOSS DIVA-I - Page 21

RHOSS DIVA-I
72 pages
Print Icon
To Next Page IconTo Next Page
To Next Page IconTo Next Page
To Previous Page IconTo Previous Page
To Previous Page IconTo Previous Page
Loading...
21
DIVA-I 30-40-50
)NSTALLATIONËTUBES
3 - Aller chaud/froid 1/2”
4 - Retour chaud/froid 1/2”
)NSTALLATIONËTUBES
1 - Aller chaud 1/2”
2 - Retour chaud 1/2”
3 - Aller froid 1/2”
4 - Retour froid 1/2”
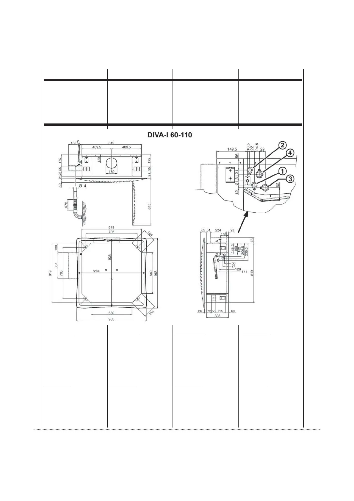
DIVA-I 60-110
)NSTALLATIONËTUBES
3 - Aller chaud/froid 3/4”
4 - Retour chaud/froid 3/4”
)NSTALLATIONËTUBES
1 - Aller chaud 1/2”
2 - Retour chaud 1/2”
3 - Aller froid 3/4”
4 - Retour froid 3/4”
DIVA-I 30-40-50
2-Leiter-Anlage
3 - Eintritt Warm-/Kaltwasser 1/2”
4 - Austritt Warm-/Kaltwasser 1/2”
4-Leiter-Anlage
1 - Eintritt Warmwasser 1/2”
2 - Austritt Warmwasser 1/2”
3 - Eintritt Kaltwasser 1/2”
4 - Austritt Kaltwasser 1/2”
DIVA-I 60-110
2-Leiter-Anlage
3 - Eintritt Warm-/Kaltwasser 3/4”
4 - Austritt Warm-/Kaltwasser 3/4”
4-Leiter-Anlage
1 - Eintritt Warmwasser 1/2”
2 - Austritt Warmwasser 1/2”
3 - Eintritt Kaltwasser 3/4”
4 - Austritt Kaltwasser 3/4”
DIVA-I 30-40-50
)NSTALACIØNTUBOS
3 - Entrada agua caliente/fría 1/2”
4 - Salida agua caliente/fría 1/2”
)NSTALACIØNTUBOS
1 - Entrada agua caliente 1/2”
2 - Salida agua caliente 1/2”
3 - Entrada agua fría 1/2”
4 - Salida agua fría 1/2”
DIVA-I 60-110
)NSTALACIØNTUBOS
3 - Entrada agua caliente/fría 3/4”
4 - Salida agua caliente/fría 3/4”
)NSTALACIØNTUBOS
1 - Entrada agua caliente 1/2”
2 - Salida agua caliente 1/2”
3 - Entrada agua fría 3/4”
4 - Salida agua fría 3/4”
DIVA-I 30-40-50
)NSTALLATIEMETLEIDINGEN
3 - Ingang warm/koud water 1/2”
4 - Uitgang warm/koud water 1/2”
)NSTALLATIEMETLEIDINGEN
1 - Ingang warm water 1/2”
2 - Uitgang warm water 1/2”
3 - Ingang koud water 1/2”
4 - Uitgang koud water 1/2”
DIVA-I 60-110
)NSTALLATIEMETLEIDINGEN
3 - Ingang warm/koud water 3/4”
4 - Uitgang warm/koud water 3/4”
)NSTALLATIEMETLEIDINGEN
1 - Ingang warm water 1/2”
2 - Uitgang warm water 1/2”
3 - Ingang koud water 3/4”
4 - Uitgang koud water 3/4”
ÉLIMINATION ENTSORGUNG ELIMINACIÓN AFDANKING
Les consommables et les pièces
remplacées doivent être éliminés en
respectant les règles de sécurité et les
normes de protection de l’environnement.
Verbrauchsteile und ersetzte Teile
müssen vorschriftsmäßig entsorgt
werden.
Las partes de consumo y las que se
sustituyen se eliminan respetando la
seguridad y de acuerdo con las nor-
mas de protección del medio ambiente.
De verbruiksonderdelen en vervangen
onderdelen worden afgedankt met
respect voor de veiligheidsvoorschriften
en overeenkomstig de milieuwetgeving.
CARACTERISTIQUES
TECHNIQUES
TECHNISCHE
CHARAKTERISTIKEN
CARACTERÍSTICAS
TÉCNICAS
TECHNISCHE
KARAKTERISTIEKEN

Related product manuals