EasyManua.ls Logo

RHOSS DIVA-I - Caratteristiche Tecniche; Waste Disposal; Technical Cha- Racteristic

RHOSS DIVA-I
72 pages
Print Icon
To Next Page IconTo Next Page
To Next Page IconTo Next Page
To Previous Page IconTo Previous Page
To Previous Page IconTo Previous Page
Loading...
20
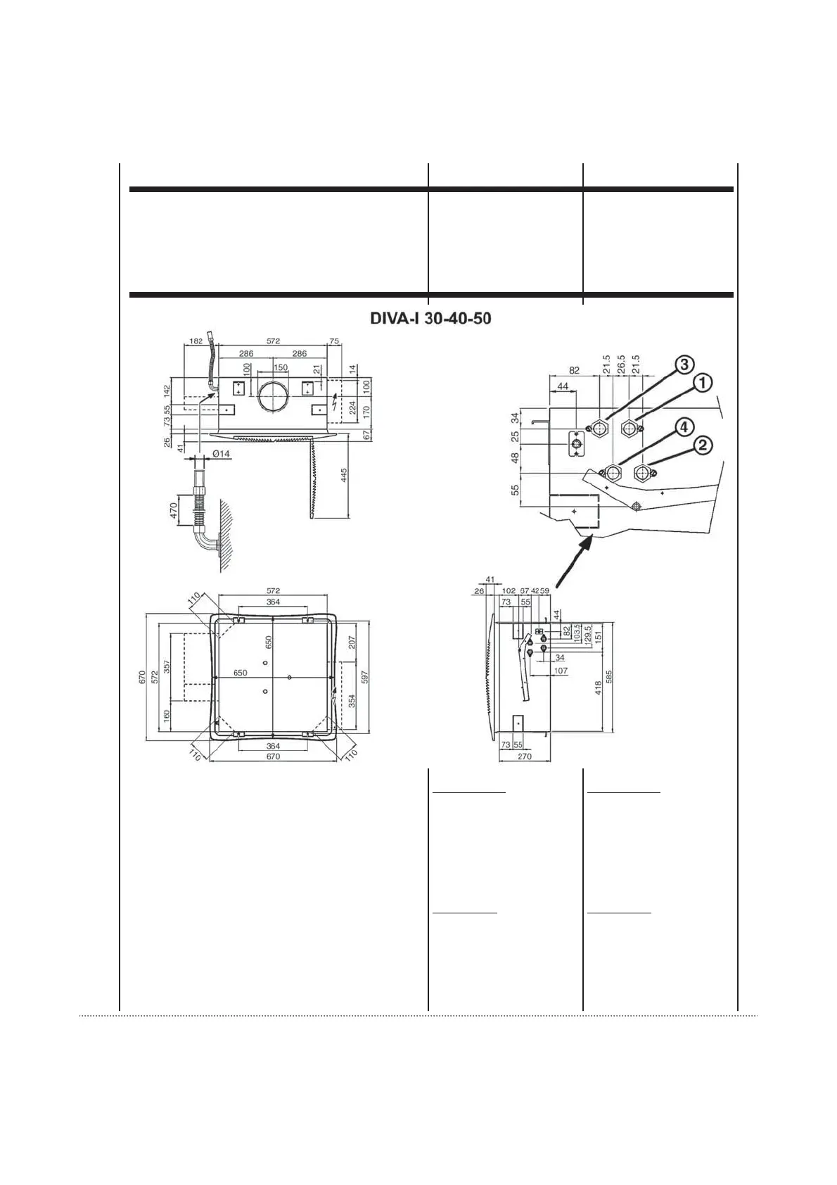
DIVA-I 30-40-50
)MPIANTOTUBI
3 - Entrata acqua calda/fredda 1/2”
4 - Uscita acqua calda/fredda 1/2”
)MPIANTOTUBI
1 - Entrata acqua calda 1/2”
2 - Uscita acqua calda 1/2”
3 - Entrata acqua fredda 1/2”
4 - Uscita acqua fredda 1/2”
DIVA-I 60-110
)MPIANTOTUBI
3 - Entrata acqua calda/fredda 3/4”
4 - Uscita acqua calda/fredda 3/4”
)MPIANTOTUBI
1 - Entrata acqua calda 1/2”
2 - Uscita acqua calda 1/2”
3 - Entrata acqua fredda 3/4”
4 - Uscita acqua fredda 3/4”
DIVA-I 30-40-50
2 pipe units
3 - Flow, heating/cooling 1/2”
4 - Return, heating/cooling 1/2”
4 pipe units
1 - Flow, heating 1/2”
2 - Return, heating 1/2”
3 - Flow, cooling 1/2”
4 - Return, cooling 1/2”
DIVA-I 60-110
2 pipe units
3 - Flow, heating/cooling 3/4”
4 - Return, heating/cooling 3/4”
4 pipe units
1 - Flow, heating 1/2”
2 - Return, heating 1/2”
3 - Flow, cooling 3/4”
4 - Return, cooling 3/4”
SMALTIMENTO
Le parti di consumo e quelle sosti-
tuite vanno smaltite nel rispetto del-
la sicurezza e in conformità con le
norme di protezione ambientale.
WASTE DISPOSAL
Consumables and replaced parts
should be disposed of safely and
in accordance with environmental
protection legislation.
CARATTERISTICHE
TECNICHE
TECHNICAL CHA-
RACTERISTIC

Related product manuals