EasyManua.ls Logo

RHOSS DIVA-I - Page 71

RHOSS DIVA-I
72 pages
Print Icon
To Next Page IconTo Next Page
To Next Page IconTo Next Page
To Previous Page IconTo Previous Page
To Previous Page IconTo Previous Page
Loading...
71
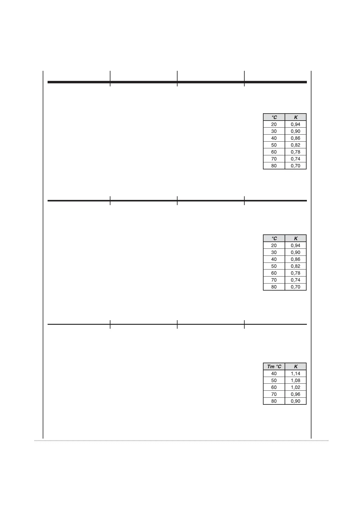
La perdita di carico si riferisce ad una temperatura media dell’acqua di 10°C;
per temperature diverse, moltiplicare la perdita di carico per il coefficiente K riportato in tabella.
The table indicates the pressure drop for a mean water temperature of 10°C.
For different water temperatures multiply by the correction factors K.
La perte de charge se référe à une température moyenne d’eau de 10°C.
Pour une température différente, multiplier la perte de charge par le coefficient K de le table suivante.
Der Druckverlust bezieht sich auf eine durchschnittliche Temperatur des Wassers von 10°C;
für abweichende Temperaturen den Druckverlust mit dem Koeffizienten K der Tabelle multiplizieren.
La pérdida de carga se refiere a una temperatura media del agua de 10°C,
para temperaturas distintas multiplicar la pérdida de carga por el coeficiente K que figura en la tabla.
Het energieverlies verwijst naar een gemiddelde watertemperatuur van 10°C;
bij verschillende temperaturen vermenigvuldigt u het energieverlies met de coëfficiënt K die u in de tabel vindt.
La perdita di carico si riferisce ad una temperatura media dell’acqua di 10°C;
per temperature diverse, moltiplicare la perdita di carico per il coefficiente K riportato in tabella.
The table indicates the pressure drop for a mean water temperature of 10°C.
For different water temperatures multiply by the correction factors K.
La perte de charge se référe à une température moyenne d’eau de 10°C.
Pour une température différente, multiplier la perte de charge par le coefficient K de le table suivante.
Der Druckverlust bezieht sich auf eine durchschnittliche Temperatur des Wassers von 10°C;
für abweichende Temperaturen den Druckverlust mit dem Koeffizienten K der Tabelle multiplizieren.
La pérdida de carga se refiere a una temperatura media del agua de 10°C,
para temperaturas distintas multiplicar la pérdida de carga por el coeficiente K que figura en la tabla.
Het energieverlies verwijst naar een gemiddelde watertemperatuur van 10°C;
bij verschillende temperaturen vermenigvuldigt u het energieverlies met de coëfficiënt K die u in de tabel vindt.
Perdite di carico lato acqua nelle batterie addizionali
alimentate con acqua calda alla temperatura media di 65°C (70/60 °C).
Coefficienti di correzione per temperature medie diverse.
The water pressure drop figures refer to a mean water temperature of 65°C (70/60 °C);
for different temperature, multiply the pressure drop figures by the correction factors K.
Les pertes de charge font référence à une température moyenne de l’eau de 65°C.
Pour des températures différentes, multiplier les pertes par le coefficient K reporté dans le tableau (70/60°C).
Druckverluste an der Wasserseite bei den Zusatzregistern,
die mit Warmwasser bei einer durchschnittlichen Temperatur von 65°C (70/60 °C) gespeist werden.
Korrekturkoeffizient für abweichende Durchschnittstemperaturen.
Pérdidas de carga lado agua en las baterías adicionales
alimentadas con agua caliente a la temperatura media de 65°C (70/60°C).
Coeficientes de corrección para temperaturas medias distintas.
Energieverlies aan de waterzijde van de bijkomende batterijen gevoed
met warm water bij een gemiddelde temperatuur van 65°C (70/60°C).
Correctiecoëfficiënt voor verschillende gemiddelde temperaturen.
DRUCKVERLUSTE WASSER / PÉRDIDAS DE CARGA LADO AGUA / WATERLEKKEN

Related product manuals