EasyManua.ls Logo

Rigol DS1202Z-E - Bandwidth Test; Specification; Test Connection Diagram; Test Procedures

Rigol DS1202Z-E
26 pages
Print Icon
To Next Page IconTo Next Page
To Next Page IconTo Next Page
To Previous Page IconTo Previous Page
To Previous Page IconTo Previous Page
Loading...
Chapter 2 Performance Verification Test RIGOL
DS1000Z-E Performance Verification Guide
2-5
Bandwidth Test
The bandwidth test verifies the bandwidth performance of the oscilloscope by testing the amplitude
loss of the oscilloscope under test at full bandwidth.
Specification
Bandwidth
Amplitude Loss
[1]
200 MHz
-3 dB, all-channel mode
Note
[1]
: Amplitude Loss (dB) = 20 × lg (Vrms2/Vrms1); wherein, Vrms1 is the measurement result of amplitude
effective value at 1MHz and Vrms2 is the measurement result of amplitude effective value at full bandwidth.
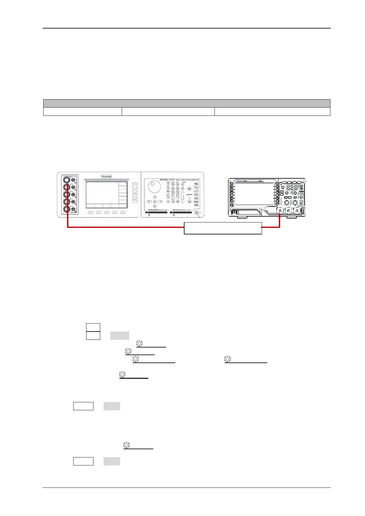
Test Connection Diagram
Figure 2-3 Bandwidth Test Connection Diagram
Test Procedures
1. Connect the active head of Fluke 9500B to CH1 of the oscilloscope via a 50 Ω impedance adapter,
as shown in the figure above.
2. Turn on Fluke 9500B and set its impedance to 50 Ω.
3. Configure the oscilloscope:
1) Press CH1 in the vertical control area (VERTICAL) on the front panel to turn on CH1.
2) Press CH1 Probe to set the probe attenuation ratio to "1X".
3) Rotate HORIZONTAL SCALE to set the horizontal time base to 500 ns/div.
4) Rotate VERTICAL SCALE to set the vertical scale to 100 mV/div.
5) Press HORIZONTAL POSITION and VERTICAL POSITION respectively to set the
horizontal position and vertical position to 0.
6) Press TRIGGER LEVEL to set the trigger level to 0 V.
4. Output a Sine with 1 MHz frequency and 600 mVpp amplitude via Fluke 9500B.
5. Press MENU Vrms at the left side of the screen of the oscilloscope to turn on the effective
value measurement function. Read and record Vrms1.
6. Output a Sine with 200 MHz frequency and 600 mVpp amplitude via Fluke 9500B.
7. Rotate HORIZONTAL
SCALE to set the horizontal time base to 2 ns/div.
8. Press MENU Vrms at the left side of the screen of the oscilloscope to turn on the effective
value measurement function. Read and record Vrms2.
Fluke 9500B
DS1000Z-E
50 Ω Impedance Adapter

Other manuals for Rigol DS1202Z-E

Related product manuals