EasyManua.ls Logo

Rinnai c199e - Connect Electricity; Adjustment for High Altitude Installations; Adjustment for Vent Length (Indoor Models Only); Checklist for Gas and Electricity

Rinnai c199e
144 pages
Print Icon
To Next Page IconTo Next Page
To Next Page IconTo Next Page
To Previous Page IconTo Previous Page
To Previous Page IconTo Previous Page
Loading...
C199 Manual 47

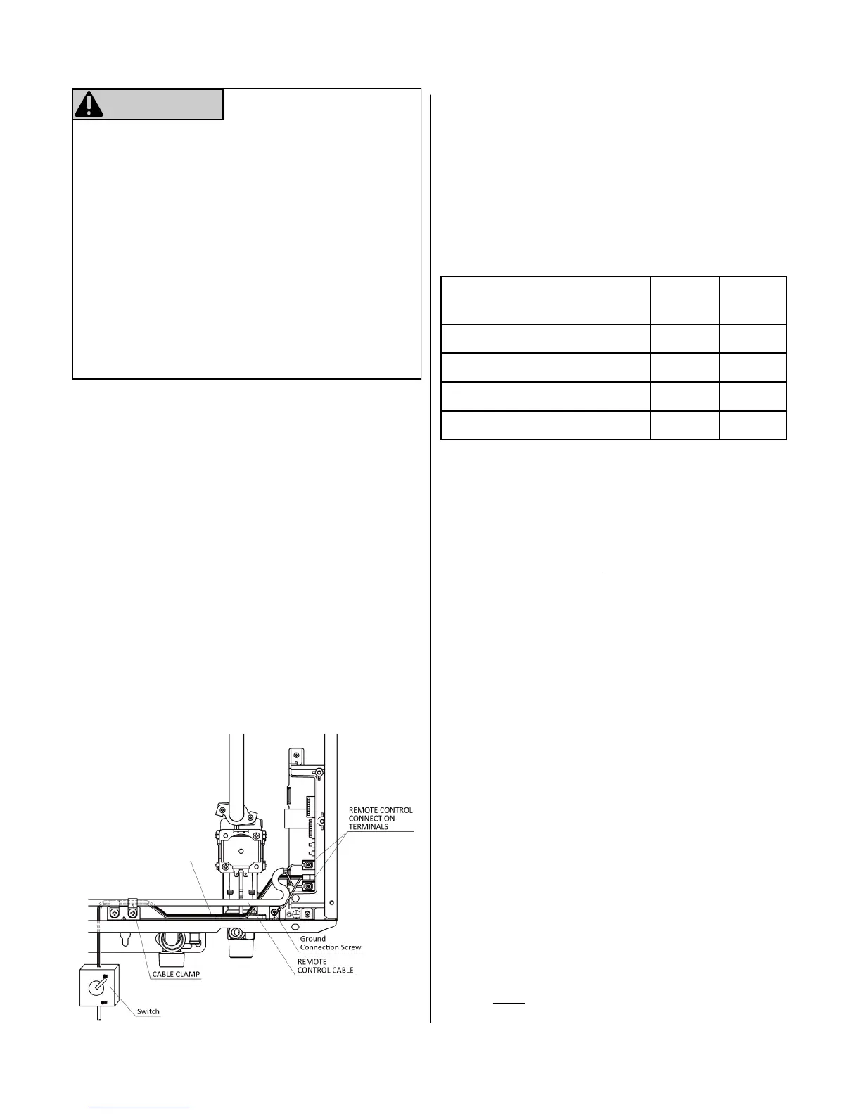
Do not rely on the gas or water piping to ground the
water heater. A screw is provided in the juncon box
for the grounding connecon.
The water heater requires 120 VAC, 60 Hz power from
a properly grounded circuit.
If using the 5 foot long power cord, plug it into a
standard 3 prong 120 VAC, 60 Hz properly grounded
wall outlet.
On outdoor models, a disconnect switch must be
provided and installed for the incoming 120 VAC
power. It should be a type that is suitable for outdoor
use. Check the Naonal Electrical Code, ANSI/NFPA
70 and your local codes for a proper switch type to
use in your area.
The wiring diagram is located on the Technical Sheet
aached to the inside of the front cover.
WARNING
Do not use an extension cord or an adapter plug with
this appliance.
The water heater must be electrically grounded in
accordance with local codes and ordinances or, in the
absence of local codes, in accordance with the
Naonal Electrical Code, ANSI/NFPA No. 70.
Indoor water heaters are equipped with a three-
prong (grounding) plug for your protecon against
shock hazard and should be plugged directly into a
properly grounded three-prong receptacle. Do not
cut or remove the grounding terminal from this plug.


Set SW2 and SW3 in DIPSW 1 to the values shown in
table below for your altude. The default seng for
the appliance is 0-2000  (0-610 m) with switches
SW2 and SW3 in the OFF posion.
When the DIP switch is adjusted, it is not necessary to
adjust the gas pressure seng for high altude.





-- OFF OFF
-- OFF ON
-- ON OFF
-- ON ON

A manual gas control valve is placed in the gas
line to the water heater.
Check the gas lines and connecons for leaks.
Conrm that the gas inlet pressure is within
limits.
Conrm that the water heater is rated for the gas
type supplied.
Conrm that the electricity is supplied from 120
VAC, 60 Hz power source and is in a properly
grounded circuit.
Conrm that an extension cord or an adapter plug
has been used with the water heater.

(indoor models only)
Adjust SW 1 in DIPSW 1 if required. Refer to the
secon “Maximum vent length”.
120V Wiring
Blue or Black wire: hot leg
Brown or White Wire: neutral

Table of Contents

Other manuals for Rinnai c199e

Related product manuals