EasyManua.ls Logo

Rinnai c199e - Dimensions; All Models

Rinnai c199e
144 pages
Print Icon
To Next Page IconTo Next Page
To Next Page IconTo Next Page
To Previous Page IconTo Previous Page
To Previous Page IconTo Previous Page
Loading...
52 C199 Manual

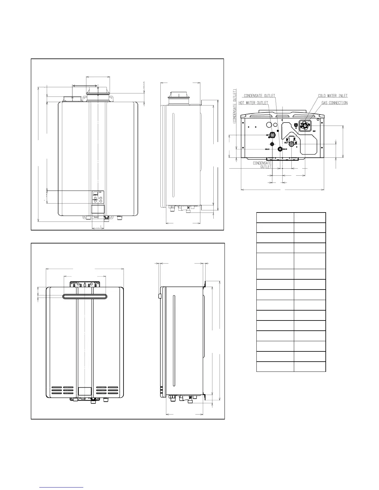
* This is the minimum dimension from the wall. The wall bracket is adjustable to allow an addional 1.57 inches (40 mm).
C199i
C199e
10.1 (257.5)
28.4 (721.6)
25.7 (654)
8.7 (222)
A
0.4 (10.1)
0.6 (15)
18.5 (470)
10.0 (253.8)
0.6 (15)
2.0 (50)
DIMENSION Inches (mm)
A (GAS) 1.6 (40.2)
A (COLD) 2.0 (50.2)
A (HOT) 1.6 (41.2)
A (CONDENSATE
OUTLET)
0.9 (22.4)
B 5.0 (127.2)
C 1.9 (47.8)
D 0.52 (13.3)
E 2.2 (56.3)
F 2.3 (58.3)
G 5.0 (127.2)
H 2.0 (50)
I 3.0 (76)
J 7.1 (179)
K 18.3 (466)
B
C
I
J
D
E
F
G
H
K
All Models
Inches (millimeters)
ø 5.5 (140.2)
31.2 (791.3)
2.02 (51.3)
20.6 (523.3)
2.8 (70.1)
10.1 (257.7)
28.5 (723.3)
25.7 (654)
8.7 (222)
A
1.2 (31.2)
2.9 (74.6)
5.9 (150)

Table of Contents

Other manuals for Rinnai c199e

Related product manuals