EasyManua.ls Logo

Rivacold ST Series - Page 105

Rivacold ST Series
Print Icon
To Next Page IconTo Next Page
To Next Page IconTo Next Page
To Previous Page IconTo Previous Page
To Previous Page IconTo Previous Page
Loading...
ST-SP Pag. 105 Rev 02 05/13
E
ATENCIÓN: antes de realizar la instalación es necesario elaborar un proyecto de la instalación frigorífica donde se
establecen: a) todos los componentes de la instalación frigorífica, tales como unidad condensadora,
evaporador, capilar, válvula termostática, cuadro eléctrico frente cámara, tamaño de las tuberías,
eventuales componentes de seguridad, etc.; b) ubicación de la instalación; c) recorrido de las tuberías.
Dejar alrededor del equipo suficiente espacio para efectuar las intervenciones de mantenimiento en condiciones de seguridad.
Durante la instalación dejar de todos modos alrededor del equipo suficiente espacio para efectuar las intervenciones de
mantenimiento en condiciones de seguridad.
Para el correcto funcionamiento del equipo se aconsejan los siguientes espesores mínimos para las paredes de las cámaras
(aislante poliuretano): cámaras MBP y HBP espesor de aislamiento 60 mm; cámaras LBP espesor de aislamiento 100 mm.
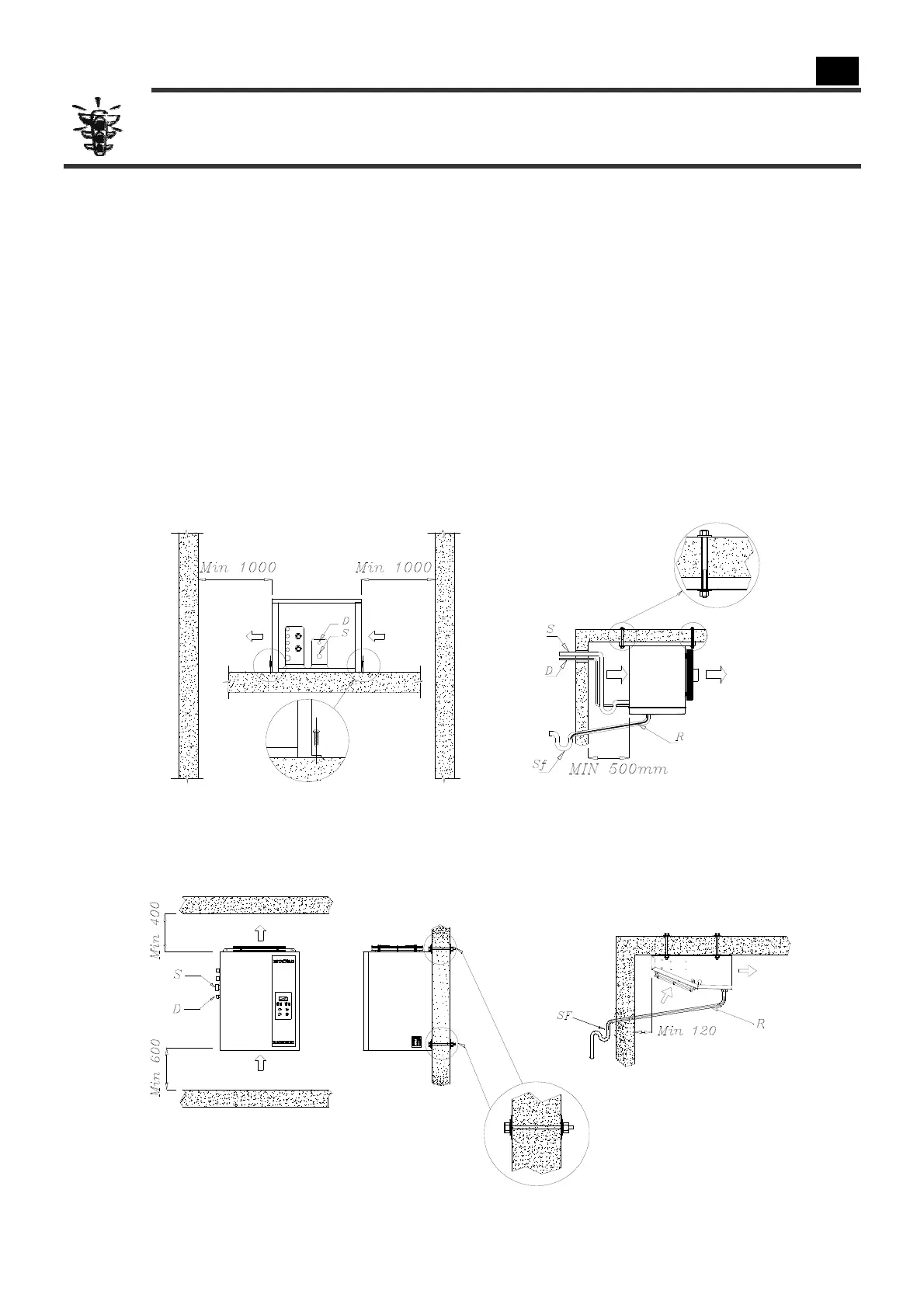
4.3.1 Modalidad de instalación Blockystem ST-SP
Para proceder con la instalación de la máquina seguir el siguiente procedimiento:
1. Levantar la máquina con un medio de elevación idóneo, utilizando los ganchos específicos.
2. Para los Blockystem ST, fijar la parte condensadora en el suelo o en el techo con 4 tornillos según indicado en la Figura 3
Para los Blocksystem SP, fijar la parte condensadora en la pared vertical con 4 tornillos según indicado en la Figura 4,
respetando una altura mínima desde el suelo de 600 mm.
3. Fijar el evaporador en el interior de la cámara mediante 4 pernos de acero (Figura 3 para ST y Figura 4 para SP).
4. Alargar el tubo de desagüe de la cubeta del evaporador con una tubo de goma (temperatura de resistencia mínima: 90 °C)
hasta el exterior de la cámara realizando un sifón (Figura 3 para ST y Figura 4 para SP). NOTA: en el caso de los modelos
MBP y LBP, insertar la resistencia de descarga en el interior del tubo.
5. Realizar un agujero en la pared de la cámara (Figura 3 para ST y Figura 4 para SP) para el paso de los tubos de impulsión,
de aspiración y para el tubo de desagüe del agua.
6. Realizar un agujero para el paso de los cables eléctricos: cable de alimentación, cable de los ventiladores del evaporador,
cable de la resistencia de descarga, cables de las resistencias de descarche, cable de luz de la cámara.
Figura 3 instalación ST máquina
Figura 4 instalación ST máquina
on
off
set
Leyenda
S = Tubo de aspiración
D = Tubo de envió
Sf = Sifón de desagüe
R = Resistencia de descarga (solo para modelos MBP y LBP)
Leyenda
S = Tubo de aspiración
D = Tubo de envió
Sf = Sifón de desagüe
R = Resistencia de descarga (solo para modelos MBP y LBP)

Table of Contents