EasyManua.ls Logo

Rivacold ST Series - Page 106

Rivacold ST Series
Print Icon
To Next Page IconTo Next Page
To Next Page IconTo Next Page
To Previous Page IconTo Previous Page
To Previous Page IconTo Previous Page
Loading...
ST-SP Pag. 106 Rev 02 05/13
E
7. Realizar otro agujero para el paso del cable micro-puerta, sondas de temperatura y de fin descarche. NOTA: es necesario
colocar estos cables lejos de cables recorridos por corriente eléctrica para evitar interferencias en las señales.
ATENCIÓN: en los modelos SPM300 / SPM370 / SPL350 / SPL450 están incluidos de serie dos pies de soporte.
Para la posición de montaje consultar la ficha técnica correspondiente reproducida en el Apartado 9 -
Anexos.
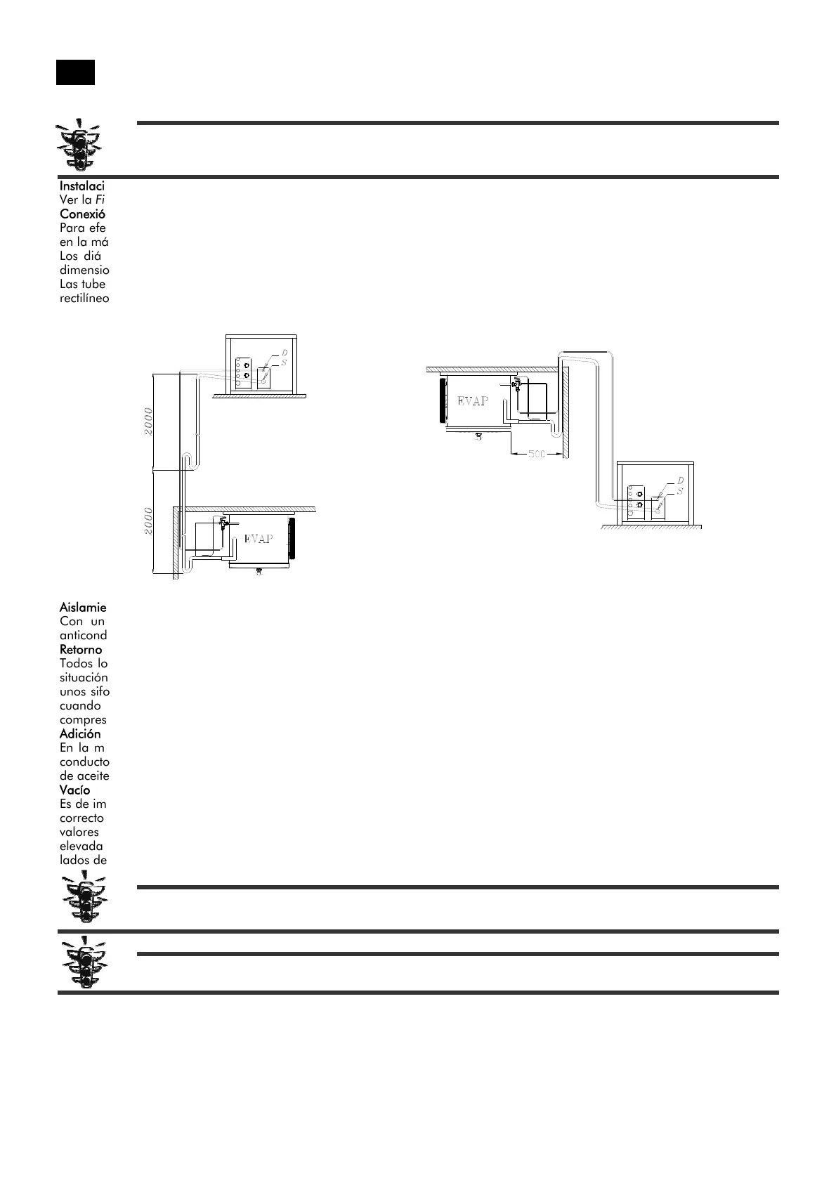
Instalación del evaporador
Ver la Figura 3 y la Figura 4 además de las especificaciones técnicas reproducidas en el Capítulo 9 – Anexos.
Conexión frigorífica
Para efectuar esta conexión, prever las tuberías de la línea líquido y aspiración según los diámetros de las conexiones presentes
en la máquina.
Los diámetros recomendados son válidos hasta las medidas de longitud máxima de 10 metros. Para longitudes superiores,
dimensionar los diámetros de manera que quede garantizada la correcta velocidad del gas.
Las tuberías tienen que ser fijadas a la pared en las cercanías de las curvas, de las soldaduras o cada 1,5-2 metros en los tramos
rectilíneos.
Figura 5 posición de mode condensador – evaporador
Aislamiento de la línea de aspiración
Con una temperatura de evaporación inferior a -10 °C, las líneas de aspiración tienen que ser aisladas con un tubo
anticondensación con un espesor de por lo menos 13 mm, para limitar el sobrecalentamiento.
Retorno de aceite
Todos los sistemas deben ser diseñados de manera que aseguren, en cualquier caso, el retorno del aceite al compresor. En la
situación representada en la Figura 5 con la unidad condensadora colocada por encima del evaporador, es importante prever
unos sifones en la línea de aspiración cada 2 m de desnivel para garantizar el retorno del aceite al compresor. En todo caso,
cuando hay tramos horizontales, es importante que la tubería de aspiración tenga una inclinación de al menos 3% hacia el
compresor.
Adición de aceite
En la mayoría de las instalaciones donde todos los conductos no superan los 10 metros no es necesario añadir aceite. Si los
conductos tienen dimensiones mayores al tamaño estándar o superan los 10 metros, es necesario añadir una pequeña cantidad
de aceite.
Vacío
Es de importancia fundamental para el correcto funcionamiento de la máquina frigorífica y la duración del compresor, realizar el
correcto vacío en el sistema, para así asegurar que el contenido de aire y sobre todo de humedad se encuentre por debajo de los
valores admitidos. La utilización de nuevos gases requiere el uso de nuevos aceites de tipo poliéster con características de
elevada higroscopicidad que requieren mayores atenciones en la ejecución del vacío, es aconsejable realizar el vacío en ambos
lados del circuito. En todo caso el objetivo por conseguir es el de obtener una presión no superior a 5 Pa.
ATENCIÓN: para evitar daños irreparables al compresor no hay que ponerlo en marcha en condiciones de vacío y
sin la carga de gas.
ATENCIÓN: durante la fase de vacío y carga recuerde suministrar tensión a la bobina de la válvula de solenoide
de la línea del líquido.
Carga del refrigerante
Tras realizar la operación de vacío, el sistema tiene que ser cargado con el tipo de refrigerante indicado en la placa CE o con
otros posibles tipos admitidos como alternativa. Para realizar correctamente la operación de carga se aconseja, tras haber
realizado el vacío, bombear parte del refrigerante en el compresor para "romper el vacío"; luego poner en marcha el compresor
para que aspire la parte restante de la carga.
Para cuantificar correctamente la carga del gas, utilizar los manómetros conectados a las tomas de presión ya predispuestas, las
presiones tienen que ser compatibles con las condiciones de trabajo de las máquinas.

Table of Contents