EasyManua.ls Logo

Robopac SPIROR HP 400 - Pneumatic Circuit Diagram Spiror Hp

Robopac SPIROR HP 400
95 pages
Print Icon
To Next Page IconTo Next Page
To Next Page IconTo Next Page
To Previous Page IconTo Previous Page
To Previous Page IconTo Previous Page
Loading...
SPIROR HP - DR
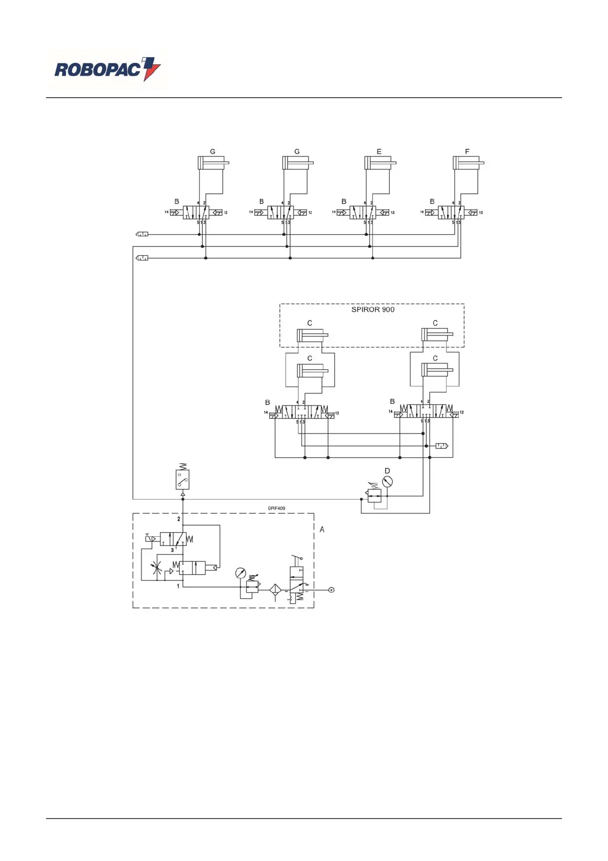
10.2. PNEUMATIC CIRCUIT DIAGRAM SPIROR HP
Ke
y
A
) Air treatment unit.
B) Solenoid valve.
C) Presser drive pneumatic cylinder.
D) Adjust / Pressure units thrust manometer.
E) Open/close clamp pneumatic cylinder.
F) Pneumatic cylinder forward / clamp backward.
G) Self-centring guides pneumatic cylinder (optional).
English
93/95

Table of Contents

Related product manuals