EasyManua.ls Logo

Rockwell Automation Trusted T823 Series - 4 Power Pack Specifications; Power Pack Features; Indicators

Rockwell Automation Trusted T823 Series
41 pages
To Next Page IconTo Next Page
To Next Page IconTo Next Page
To Previous Page IconTo Previous Page
To Previous Page IconTo Previous Page
Loading...
Trusted Power System 4. Power Pack Specifications
Rockwell Automation Publication PD-T823X Issue 11 13
4. Power Pack Specifications
The Power Pack is specifically designed to operate as an integral part of a complete
distributed Power System.
A full complement of protection, alarm and control features has been incorporated into the
Power Pack to provide versatility for use in many applications.
Power Packs can be inserted and removed when live, allowing ‘hot-swap’ of Power Packs
(see section 4.7). They are secured using a physical latch on the front of the Power Pack
which is pushed up to release or connect the Power Pack into the Power Shelf.
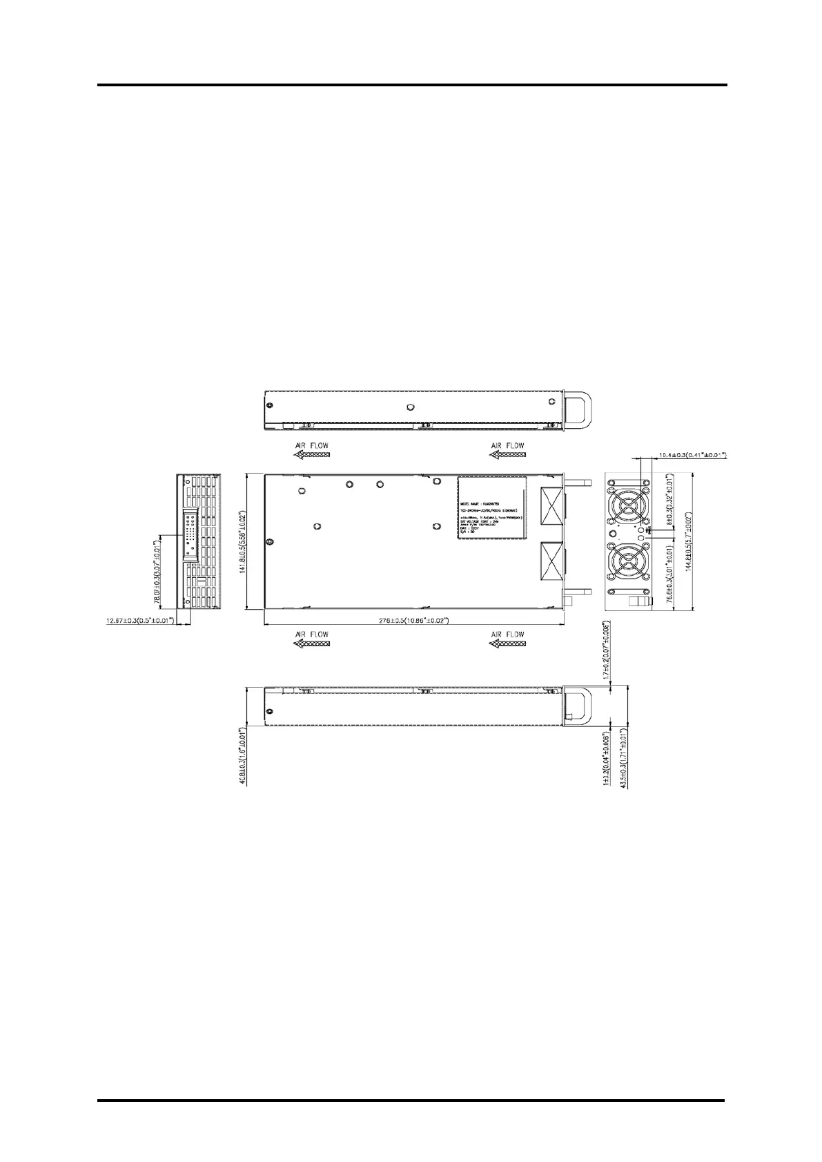
Figure 7 Power Pack Outline Drawing. Dimensions mm (inches)
4.1. Power Pack Features
4.1.1. Indicators
The Power Pack has two indicators on the front:
AC OK: The LED is green if the input voltage is within limits.
PWR OK: The LED is green if the Power Pack is healthy and within operating limits. If
a fault occurs with the power supply or a fan, the LED is amber.

Related product manuals