EasyManua.ls Logo

Roxell FLEX-AUGER FA 125 - Motor Starter

Default Icon
178 pages
Print Icon
To Next Page IconTo Next Page
To Next Page IconTo Next Page
To Previous Page IconTo Previous Page
To Previous Page IconTo Previous Page
Loading...
ROXELL - 031 - 0516
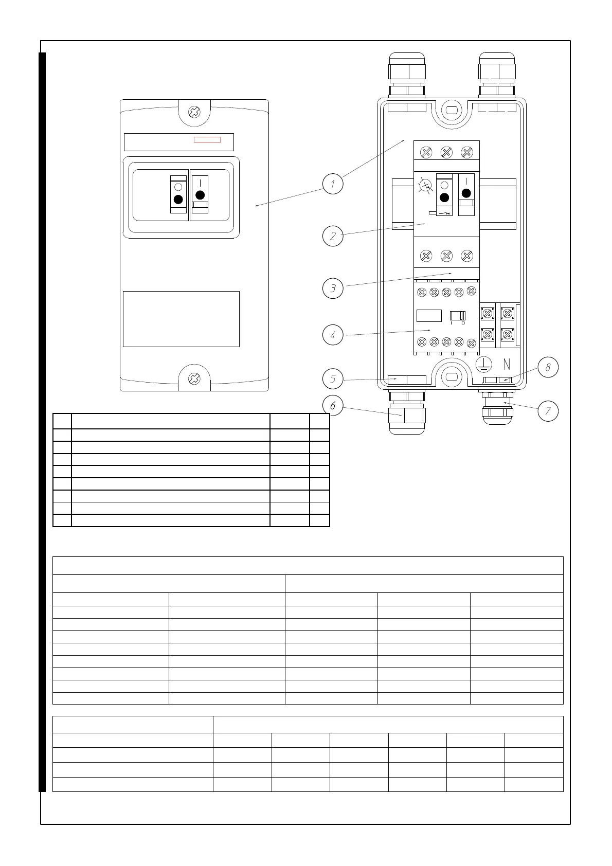
FLEX-AUGER - COMPONENTS
II-54
MOTOR STARTER
A1
NO
13
L3
5
L2
3
L1
1
A2
NO
14
T3
6
T2
4
T1
2
T3
6
T2
4
T1
2
L3
5
L2
3
L1
1
OFF
STARTSTOP
OFF
STARTSTOP
Key Name Part Nr. Qt.
1
ENCLOSURE MOTOR STA RTER
15011934 1
2
CONTACTOR 3P+1NO 230VAC
15011926 1
3
MOUNT SOCLE GV 2-A F01
15010291 1
4
THERMAL MAGNETIC PROTECTION : See : w here used
_1
5
CABLE RING NUT M20
15010440 3
6
CABLE RING V-TEC VM20 LGR
15010210 3
7
CABLE RING M16
10111755 1
8
CABLE RING NUT M16
10111763 1
MOTOR STARTER USED FOR :
MOTOR RATING SUPPLY VOLTAGE
50Hz 60Hz
3-PH. 230V 3- PH. 400V 1-PH. 230V
0.18KW 0.22KW 05001233 05001225 05001241
0.25KW 0.30KW 05001233 05001225 05001241
0.37KW 0.44KW 05001241 05001233 05001249
0.55KW 0.66KW 05001249 05001241 05001249
0.74KW 0.90KW 05001249 05001241 05001257
1.10KW 1.32KW 05001257 05001249 05001265
1.25KW 1.50KW 05001257 05001249 05001265
1.50KW 1.80KW 05001265 05001249 05001265
THERMAL-MAGNETIC MOTOR PROTECTION : WHERE USED
MOTOR STARTER
05001225 05001233 05001241 05001249 05001257 05001265
THERM. MAGNETIC PROTECT.
13600861 13900261 13600887 13900279 15004799 15006307
SCHNEIDER REF.
GV2-ME05 GV2-ME06 GV2-ME07 GV2-ME08 GV2-ME010 GV2-ME012
CURRENT
0,63-1.00A 1.00-1,60A 1,60-2,50A 2,50-4.00A 4.00-6.30A 6.00-10.00A
(FOR 1 MOTOR CONTROL)

Table of Contents

Related product manuals