EasyManua.ls Logo

RUTHMANN Steiger TB270 - Page 200

Default Icon
261 pages
Print Icon
To Next Page IconTo Next Page
To Next Page IconTo Next Page
To Previous Page IconTo Previous Page
To Previous Page IconTo Previous Page
Loading...
9 Maintenance
9-14
RUTHMANN-Steiger
®
TB270
BA.GB.12-27409-05-07-FTA-jr
9.2.2 Connection pieces at hydraulic cylinders
Tightening moments Screw fittings Connecting pieces
Fitting
Screw
Tightening
No.
„Connecting piece -
cylinder“
Designation
Dimension
Quality
moment
M
A
(Nm)
1.
Jack cylinder (vertical)
(only with screw fitting)
Cheese-head
screw
M 8
M 8
8.8
10.9
25
36
1.
Extension cylinder of jack
arm (horizontal)
Hex. screw
M 8
8.8
20
1.
Hydrostat cylinder
(master cylinder)
Hex. screw
M 8
8.8
20
1.
Lifting cylinder
Hex. screw
M 8
8.8
20
1.
Telescope cylinder
Hex. screw
M 8
8.8
20
1.
Hydrostat cylinder
(slave cylinder)
Hex. screw
M 8
8.8
20
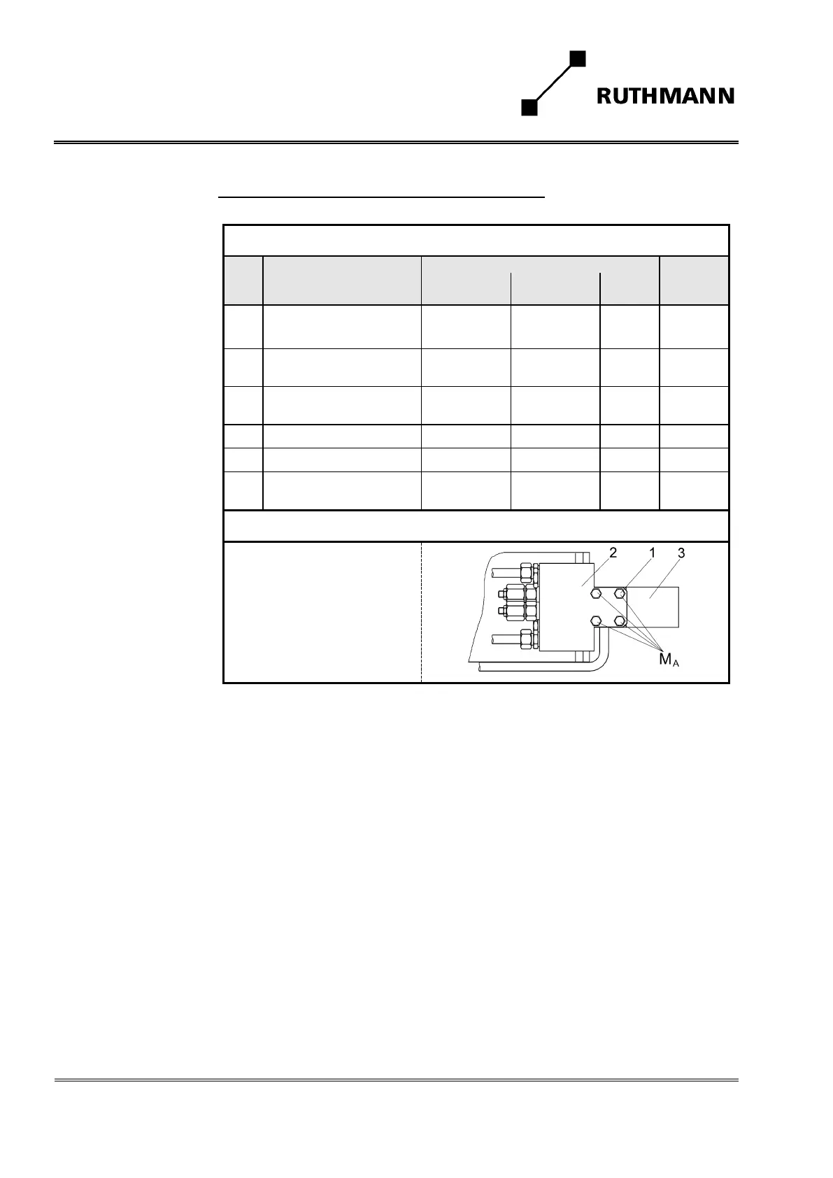
Example
Connecting piece with hexag-
onal screw fitting
1. Hex. screw
2. Connecting piece
3. Hydraulic cylinder

Related product manuals