EasyManua.ls Logo

Saftronics GP10 - Page 15

Default Icon
57 pages
Print Icon
To Next Page IconTo Next Page
To Next Page IconTo Next Page
To Previous Page IconTo Previous Page
To Previous Page IconTo Previous Page
Loading...
14
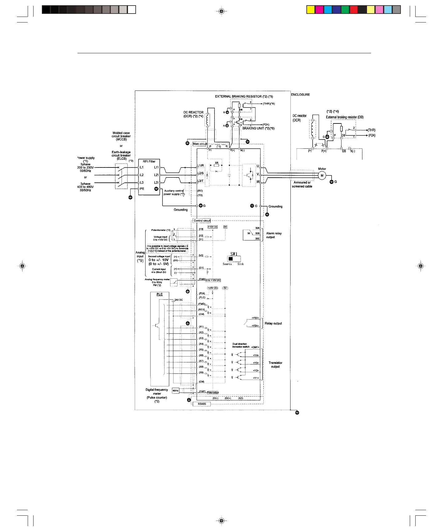
Basic Connection Diagram to PLC (Source logic, Typically used in Europe)
See page 2-6 for notes
20 Hp and above Up to 15 Hp
Artisan Technology Group - Quality Instrumentation ... Guaranteed | (888) 88-SOURCE | www.artisantg.com

Related product manuals