EasyManua.ls Logo

Saftronics GP10 - Page 45

Default Icon
57 pages
Print Icon
To Next Page IconTo Next Page
To Next Page IconTo Next Page
To Previous Page IconTo Previous Page
To Previous Page IconTo Previous Page
Loading...
44
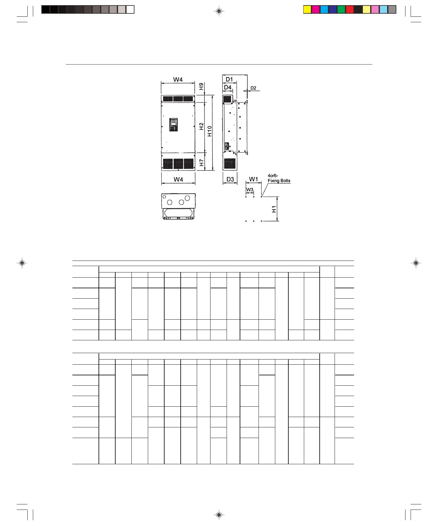
Outline Dimensions NEMA 1-Variable/Torque, Constant Torque
230V Series NEMA 1-Variable/ Torque, Constant Torque
Mtg. Wt.
W1 W3 W4 H1 H2 H3 H6 H7 H9 H10 D D2 D3 D4 Bolts Lb (kg)
40/30 9.4 13.5 20.9 19.7 20.2 0.4 7.1 3 29.7 10 0.2 5.7 4.1 M8 70
(240) (342) (530) (500) (512) (9) (180) (75) (755) (255) (4) (145) (105) (32)
50/40
10.8 14.9 23.4 22.2 22.7 7.9 33.1 10.6 86
(275) (377) (595) (565) (577) (200) (840) (270) (39)
60/50
28.3 27.2 27.6 38 106
(720) (690) (702) (965) (48)
75/65
110
(50)
100/75
16.9 21 27 27.4 0.5 11.1 3.3 41.3 11.2 3.6 M12 172
(430) (533) (685) (695) (13) (283) (83) (1050) (285) (91) (78)
125/100
22.8 11.4 26.9 33.5 32.1 32.5 15.1 50.4 14.2 8.7 6.5 282
150/125
(580) (290) (683) (850) (815) (825) (383) (1280) (360) (220) (166) (128)
460V Series NEMA 1-Variable/ Torque, Constant Torque
Mtg. Wt.
W1 W3 W4 H1 H2 H3 H6 H7 H9 H10 D D2 D3 D4 Bolts Lb (kg)
40/30 9.4 13.5 20.9 19.7 20.2 0.4 7.1 3 29.7 10 0.2 5.7 4.1 M8 70
(240) (342) (530) (500) (512) (9) (180) (75) (755) (255) (4) (157) (105) (32)
50/40
10.8 14.9 10.6 82
(275) (377) (270) (37)
60/50
25.8 24.6 25.1 34.6 95
(655) (625) (637) (880) (43)
75/65
97
(44)
100/75
28.3 27.2 27.6 7.9 38 115
(720) (690) (702) (200) (965) (52)
125/100
16.9 21 28 26.6 27 0.5 8.2 3.3 12.4 6.9 4.7 M12 174
150/125
(430) (533) (710) (675) (685) (13) (208) (83) (315) (175) (121) (79)
200/150
38 37 37 13 53.1 14.2 8.7 7 245
250/200
(970) (935) (945) (333) (1350) (360) (220) (166) (111)
300/250
22.8 11.4 26.9 15.1 55.1 337
(580) (290) (683) (383) (1400) (153)
350/300
400/350
450/350
Hp
Hp
DIMENSIONS inches (mm)
DIMENSIONS inches (mm)
Artisan Technology Group - Quality Instrumentation ... Guaranteed | (888) 88-SOURCE | www.artisantg.com

Related product manuals