EasyManua.ls Logo

Sailor RT5022 VHF DSC - Compass Safe Distance

Sailor RT5022 VHF DSC
68 pages
Print Icon
To Next Page IconTo Next Page
To Next Page IconTo Next Page
To Previous Page IconTo Previous Page
To Previous Page IconTo Previous Page
Loading...
47
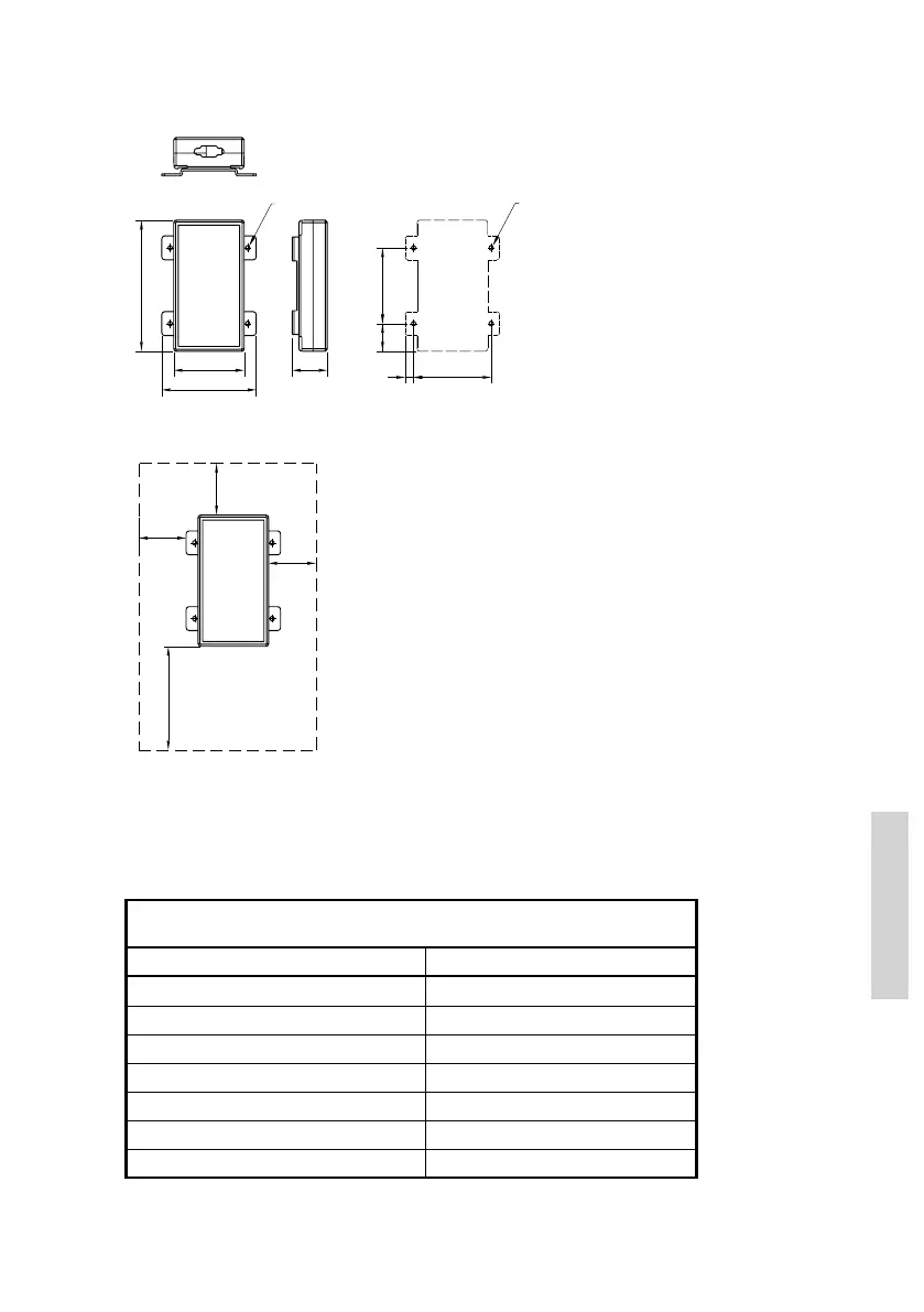
Installation
LAN box
Drilling plan
39658
** Free space for cable entry.
* Free space for mounting,
Mounting
* 50
** min. 100
* 50
* 50
73
26.75
82
9
126.5
37
74.5
100
4xø4.5
4xø3.5
Weight
LAN box 0.3 kg
9.2 Compass safe distance
Safe distance in accordance with Annex A of ISO 694:2000.
Device After magnetization
RT5022 Transceiver Unit 80 cm
C5001 Handset 85 cm
C5000 Semi-functional Control Unit 85 cm
CB5009 Connection Box 75 cm
EB Extension Box 55 cm
LB5007 LAN Box 30 cm
AP4365 Alarm Panel 50 cm
Safe distance between the nearest point of the item and the centre
of the compass at which it will produce a diviation of 0.
0622

Table of Contents

Related product manuals