EasyManua.ls Logo

Samsung AM18A1(B1)E09 - Wiring Diagrams

Samsung AM18A1(B1)E09
53 pages
Print Icon
To Next Page IconTo Next Page
To Next Page IconTo Next Page
To Previous Page IconTo Previous Page
To Previous Page IconTo Previous Page
Loading...
Samsung Electronics
9-1
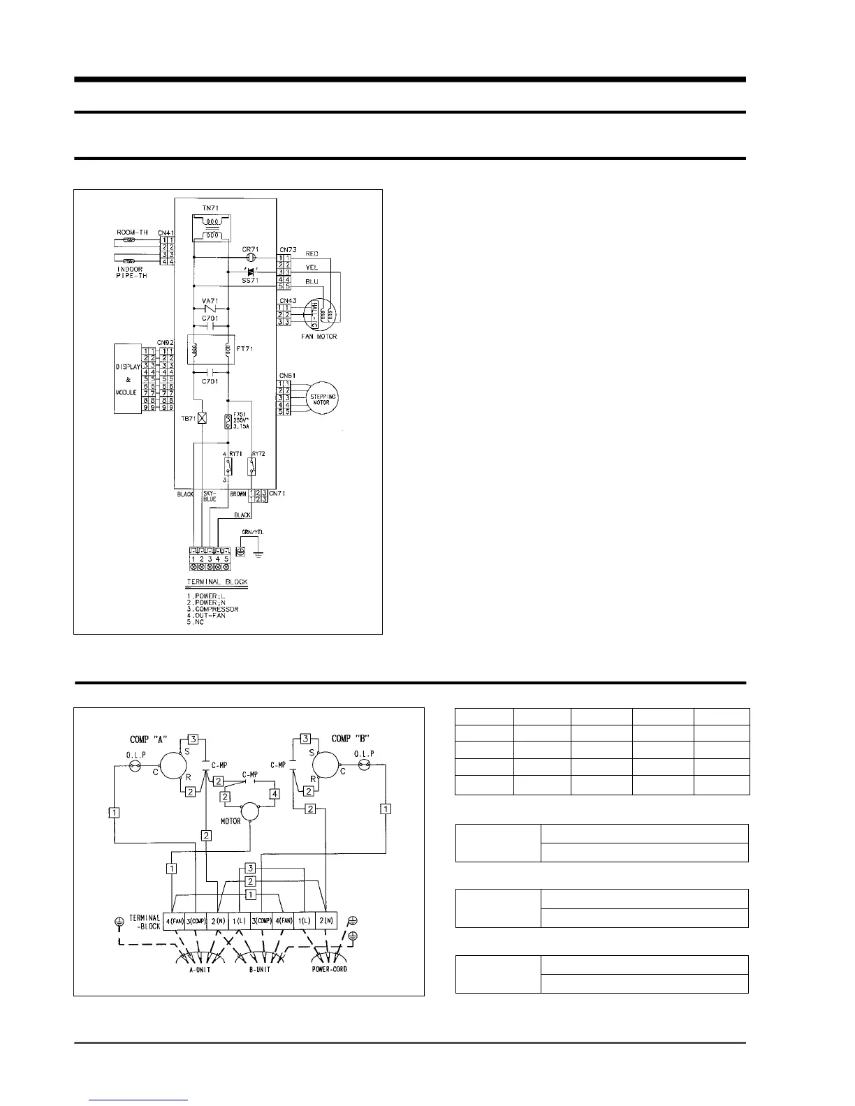
9. Wiring Diagrams
9-1 Indoor Unit
9-2 Outdoor Unit
ENGLISH ESPANOL FRANCAIS ITALIANO
1 BLK NEGRO NOIR NERO
2 RED ROJO ROUGE ROSSO
3 WHT BLANCO BLANC BIANCO
4 YEL AMARILLO JAUNE GIALLO
FAN MOTOR : 2.5µF/450VAC
CAPACITOR
COMP MOTOR : 30µF/420VAC
FAN MOTOR : 2.5µF/450VAC
CAPACITOR
COMP MOTOR :
30µF/420VAC, 25µF/370VAC
UM18A1(B1)E2
UM19A1(B1)E2
FAN MOTOR : 2.5µF/450VAC
CAPACITOR
COMP MOTOR : 20µF/450VAC
UM18A1(B1)B2

Related product manuals