EasyManua.ls Logo

Samsung AM320FNBDEH/EU - Page 11

Samsung AM320FNBDEH/EU
66 pages
Print Icon
To Next Page IconTo Next Page
To Next Page IconTo Next Page
To Previous Page IconTo Previous Page
To Previous Page IconTo Previous Page
Loading...
10
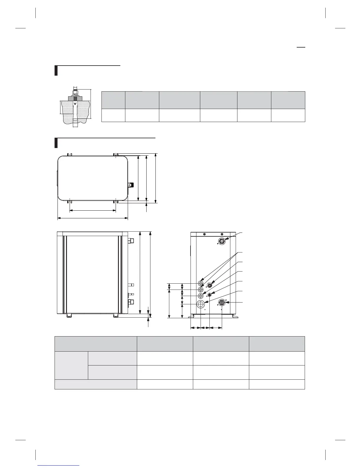
Base construction and installation of the DVM Hydro unit / Hydro unit HT
Anchor specification
b
c
a
m
Size
Diameter of
drill bit (a)
Anchor length (b) Sleeve length (c) Insert depth
Fastening
torque
M10 14 mm 75 mm 40 mm 50 mm 30 N·m
Dimension of the DVM Hydro unit
340
333
330
16
599
365
626
27
45
45205
60
100
Communication cable
Liquid pipe
Gas pipe
External contact
Water outlet pipe
Water inlet pipe
Power cable
518
73.5 65 90
(Unit: mm)
Model of the DVM Hydro unit
ADN160BDE✴✴
AM160FNBD✴✴
ADN320BDE✴✴
AM320FNBD✴✴
ADN500BDE✴✴
AM500FNBD✴✴
Refrigerant
side
Liquid side
connection part
3/8” (ø9.52) 3/8” (ø9.52) 1/2” (ø12.7)
Gas side connection
part
5/8” (ø15.88) 7/8” (ø22.23) 1-1/8” (ø28.58)
Water side connection part PT 1 (25A) PT 1 (25A) PT 1-1/4 (32A)
k}tGokyvGo{ptXYWZ`]]hTXluUGGGXW YWXZTW_TW]GGG㝘㤸G`a[[aY\

Other manuals for Samsung AM320FNBDEH/EU

Related product manuals