EasyManua.ls Logo

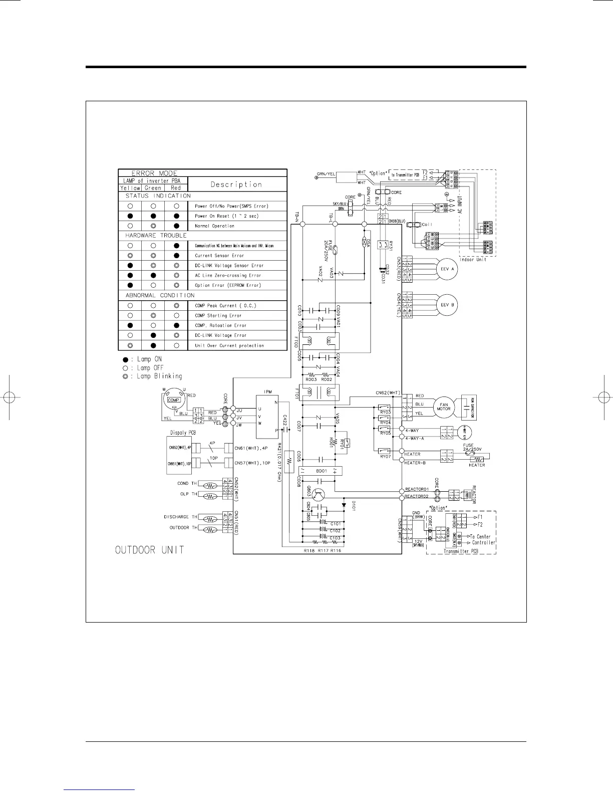
Samsung MH052FXEA2 - Wiring Diagram (Continued); Outdoor Unit Wiring Diagrams

Samsung MH052FXEA2
208 pages
Print Icon
To Next Page IconTo Next Page
To Next Page IconTo Next Page
To Previous Page IconTo Previous Page
To Previous Page IconTo Previous Page
Loading...
7-6Samsung Electronics
This Document can not be used without Samsung's authorization.
7-2 Outdoor Unit
MH040FXEA2/MH052FXEA2/MH14VP2X/MH16VP2X/MH18VP2X/MH19VP2X/MH14VW2X/MH16VW2X/MH18VW2X/MH19VW2X
24296A(1)_2 11/11/05 5:06 PM Page 4-83

Other manuals for Samsung MH052FXEA2

Related product manuals