EasyManua.ls Logo

Samsung RB2155BB - 6-2) Dimensions of Refrigerator (Inches)

Samsung RB2155BB
62 pages
Print Icon
To Next Page IconTo Next Page
To Next Page IconTo Next Page
To Previous Page IconTo Previous Page
To Previous Page IconTo Previous Page
Loading...
9
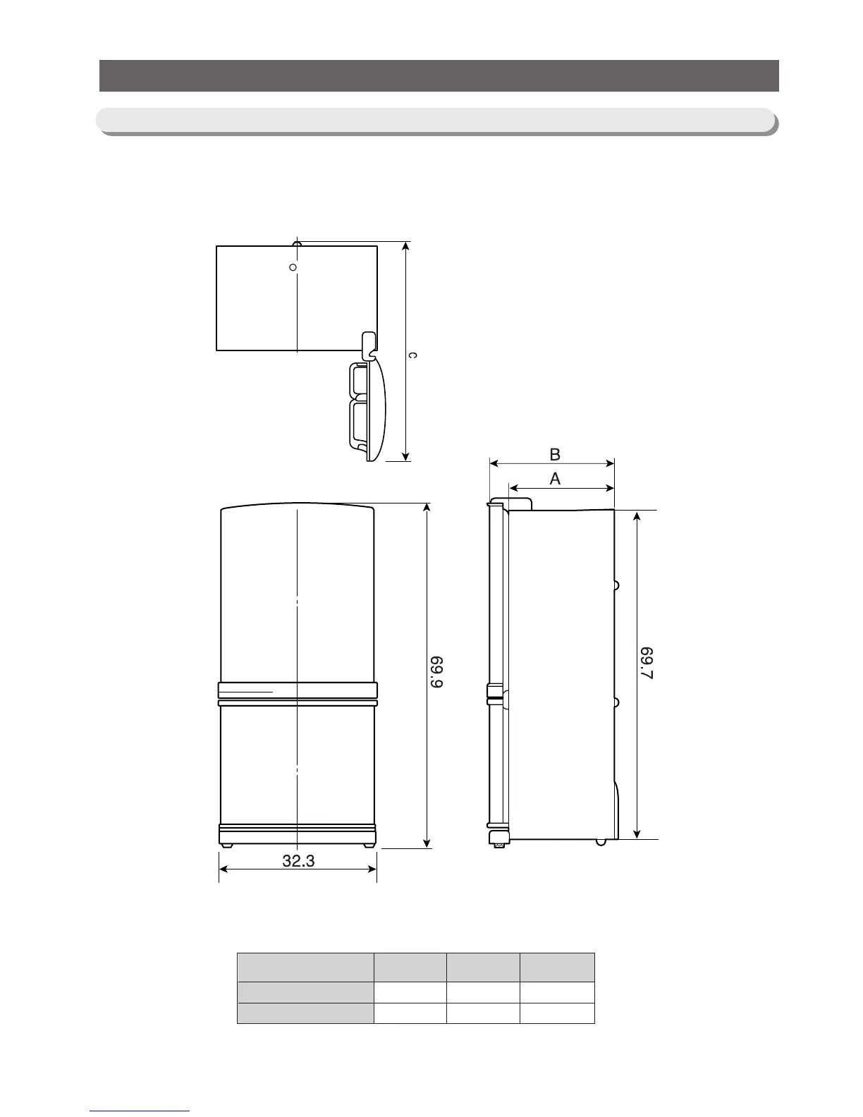
Interior Views and Dimensions
MODEL
RB1955
RB2155
A
24.3
26.3
B
28.3
30.3
C
57.8
59.8
6-2) Dimensions of Refrigerator (Inches)

Related product manuals