EasyManua.ls Logo

Samsung RCD-M70 - Wiring Diagram

Samsung RCD-M70
24 pages
Print Icon
To Next Page IconTo Next Page
To Next Page IconTo Next Page
To Previous Page IconTo Previous Page
To Previous Page IconTo Previous Page
Loading...
Samsung Electronics 7-1
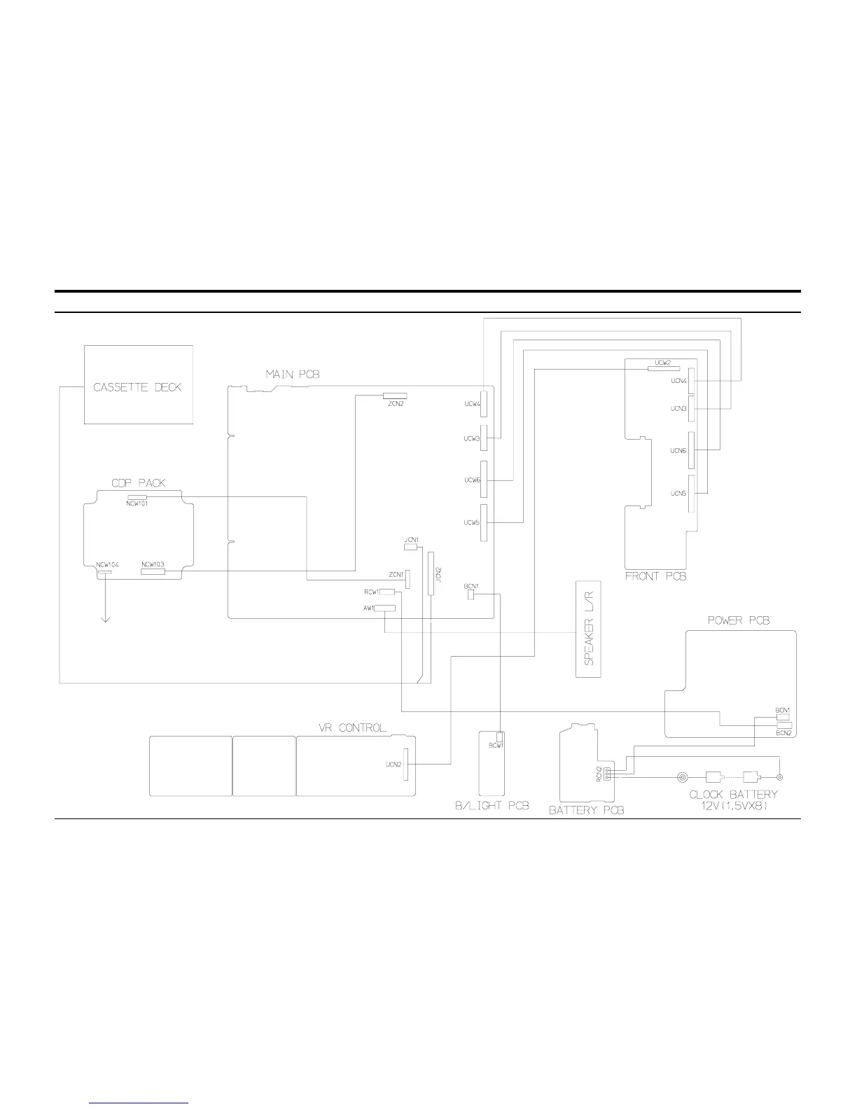
7. Wiring Diagram

Related product manuals