EasyManua.ls Logo

SANJIANG SEC1000 - Internal Wiring; Mounting the Chassis to the Wall

SANJIANG SEC1000
26 pages
Print Icon
To Next Page IconTo Next Page
To Next Page IconTo Next Page
To Previous Page IconTo Previous Page
To Previous Page IconTo Previous Page
Loading...
SEC1000 FIRE ALARM CONTROL PANEL
Page
5
of 24
communication board; The RS485 interface is reserved.
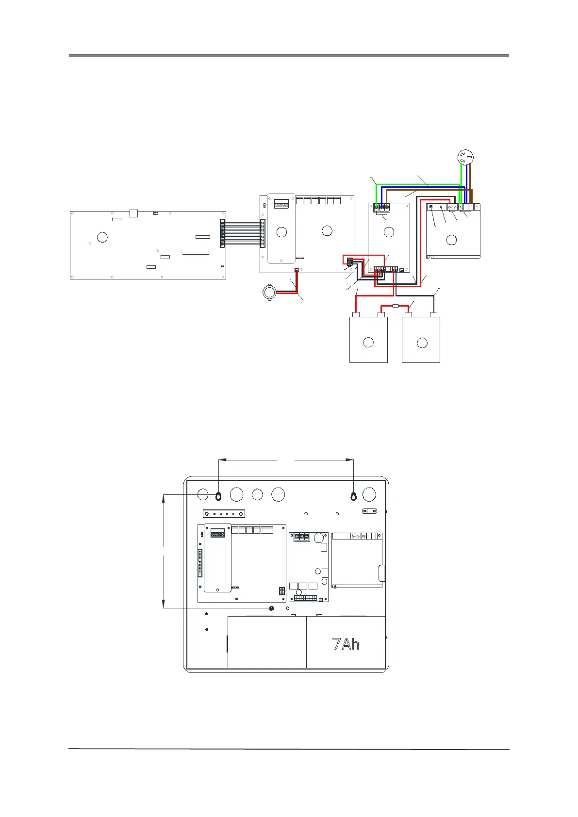
3.2 Internal wiring
250V 10A
L
N
-
+
-
+
1
2
3
4
5
6
6
7
SEC1000_CB
SEC1000_MB
SEC1000_COM
PMC_01
LSP-75-24
ADJ(TB4)
LED(TB3)
DC(TB2)
AC(TB1)
AC(TB5)
Red
Black
Red
Red
Black
Red
Red
Black
Black
Red
Black
Yellow&green
Blue
Brown
RS485
3.3 Mounting the chassis to the wall
The panel can be surface or semi-flush mounted through the four mounting holes provided.
See the diagram below about the mounting dimensions and recommended screw size.
260
206
N
L
(Unit: mm)

Related product manuals